Cumberland County
Building Summary

Data last updated on: 1/31/2026     Ownership current as of: 1/20/2026     Tax Year: 2026
REID 9496605635000

PIN # 9496-60-5635

Location Address Property Description
1929 WORDSWORTH DR LAKEPOINT PLACE LO:51 SE:02 PL:0048-0078
   
Property Owner Owner's Mailing Address
WARD, SADIE
1929 WORDSWORTH DRIVE
FAYETTEVILLE NC 28304
Parcel
Buildings
Misc Improvements
Land
Deeds
Documents
Notes
Sales
Sales Comparison
Photos
Building Location Address
1929 WORDSWORTH DR
Building Description
R1-SINGLE-FAMILY-RES
Card   of  1
Bldg Type R1-SINGLE-FAMILY-RES
Units 0
Living Area (SQFT) 1316
Number of Stories 1.00
Style 000002-STYLE
Foundation G-PIERS-W/CNTFWL
Frame CONSTANT
Exterior 04-VINYL-SIDING
Const Type
Heating M-07&S-01
Air Cond AC-Y
Plumbing Baths (Full):   2
Baths (Half):   0
Extra Fixtures:   0
Total Plumbing Fixtures:   6 
Bedrooms 3
Floor 11-CARPET-COMB
Roof Cover 03-COMP SHINGLE
Roof Type 02-GABLE
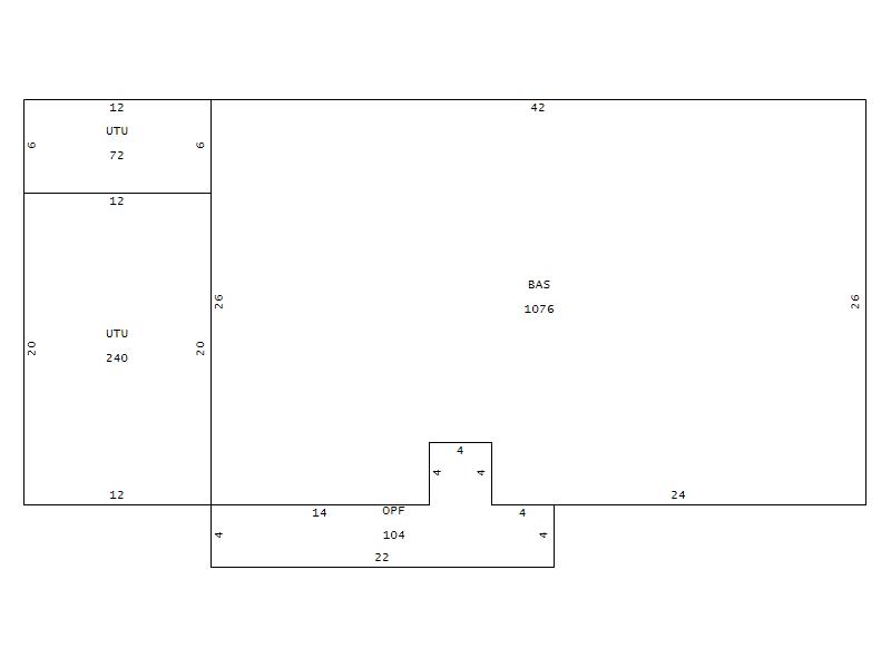
Main Body (SQFT) 1076
Year Built 1983
Additions 3
Effective Year 1992
Remodeled 0
Interior Adj.
Other Features
Building Total & Improvement Details

Grade 350 100%
Percentage Complete 100
Total Adjusted Replacement Cost New $140,923
Physical Depreciation (% Bad) A 25%
Depreciated Value $105,692
Economic Depreciation (% Bad) 0
Functional Depreciation (% Bad) 0
Total Depreciated Value $105,692
Market Area Factor 1.00
Building Value $105,692
Misc Improvements Value $322
Total Improvement Value $106,014

Assessed Land Value $25,000
   
Assessed Total Value $208,700



Addition Summary 
StoryTypeCodeArea
1.00 UTILITY UNFIN UTU 72
1.00 ENCL AREA AVER EAC 240
1.00 OPEN PORCH FIN OPF 104
 
Other Improvements 
UnitsDescriptionItemCodeYear% BadValue
10x12 DIMENSIONS CONCRETE PATIO 1983 65 322
 


Building Sketch
Photograph
Building Sketch Building Photo
(Click sketch for bigger image)