Cumberland County
Building Summary

Data last updated on: 1/31/2026     Ownership current as of: 1/20/2026     Tax Year: 2026
REID 9496609434000

PIN # 9496-60-9434

Location Address Property Description
6513 GREEN MEADOW RD LAKE POINT PLACE LO:2 SE:01 PL:0045-0004
   
Property Owner Owner's Mailing Address
BURTON, DYLAN;BURTON, COURTNEY
6513 GREEN MEADOW DR
FAYETTEVILLE NC 28304
Parcel
Buildings
Misc Improvements
Land
Deeds
Documents
Notes
Sales
Sales Comparison
Photos
Building Location Address
6513 GREEN MEADOW RD
Building Description
R1-SINGLE-FAMILY-RES
Card   of  1
Bldg Type R1-SINGLE-FAMILY-RES
Units 0
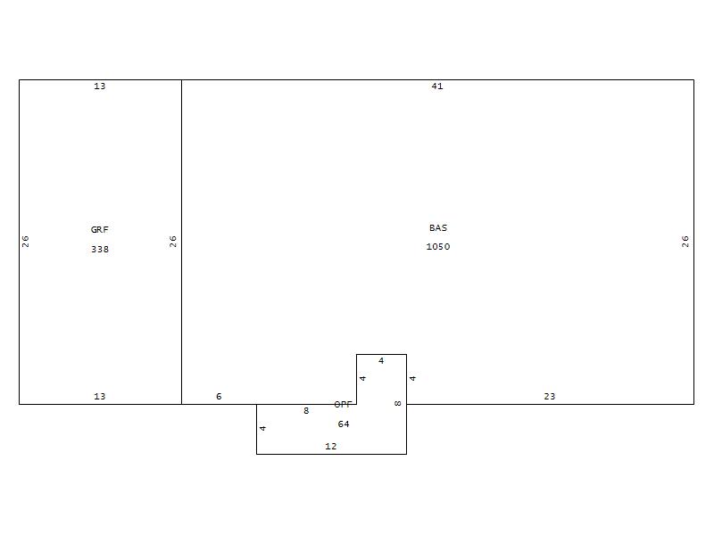
Living Area (SQFT) 1050
Number of Stories 1.00
Style 000002-STYLE
Foundation G-PIERS-W/CNTFWL
Frame CONSTANT
Exterior 04-VINYL-SIDING
Const Type
Heating M-07&S-01
Air Cond AC-Y
Plumbing Baths (Full):   2
Baths (Half):   0
Extra Fixtures:   0
Total Plumbing Fixtures:   6 
Bedrooms 3
Floor 12-CARPET
Roof Cover 03-COMP SHINGLE
Roof Type 02-GABLE
Main Body (SQFT) 1050
Year Built 1981
Additions 2
Effective Year 1988
Remodeled 0
Interior Adj.
Other Features
Building Total & Improvement Details

Grade 350 100%
Percentage Complete 100
Total Adjusted Replacement Cost New $133,116
Physical Depreciation (% Bad) A 26%
Depreciated Value $98,506
Economic Depreciation (% Bad) 0
Functional Depreciation (% Bad) 0
Total Depreciated Value $98,506
Market Area Factor 1.00
Building Value $98,506
Misc Improvements Value
Total Improvement Value $98,506

Assessed Land Value $25,000
   
Assessed Total Value $190,600



Addition Summary 
StoryTypeCodeArea
1.00 GARAGE FINISH GRF 338
1.00 OPEN PORCH FIN OPF 64
 
Other Improvements 
 


Building Sketch
Photograph
Building Sketch Building Photo
(Click sketch for bigger image)