Cumberland County
Building Summary

Data last updated on: 1/31/2026     Ownership current as of: 1/20/2026     Tax Year: 2026
REID 9496612326000

PIN # 9496-61-2326

Location Address Property Description
6447 GREEN MEADOW RD LAKEPOINT PLACE LO:95 SE:2 PL:0048-0078
   
Property Owner Owner's Mailing Address
MURRAY, EDWARD JR;HECTOR, GARCIA WILLIAMS
6447 GREEN MEADOW RD
FAYETTEVILLE NC 28304
Parcel
Buildings
Misc Improvements
Land
Deeds
Documents
Notes
Sales
Sales Comparison
Photos
Building Location Address
6447 GREEN MEADOW RD
Building Description
R1-SINGLE-FAMILY-RES
Card   of  1
Bldg Type R1-SINGLE-FAMILY-RES
Units 0
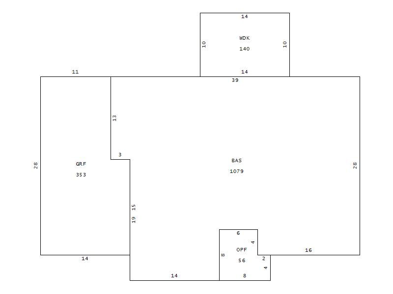
Living Area (SQFT) 1079
Number of Stories 1.00
Style 000002-STYLE
Foundation G-PIERS-W/CNTFWL
Frame CONSTANT
Exterior 04-VINYL-SIDING
Const Type
Heating M-07&S-01
Air Cond AC-Y
Plumbing Baths (Full):   2
Baths (Half):   0
Extra Fixtures:   0
Total Plumbing Fixtures:   6 
Bedrooms 3
Floor 11-CARPET-COMB
Roof Cover 03-COMP SHINGLE
Roof Type 02-GABLE
Main Body (SQFT) 1079
Year Built 1990
Additions 3
Effective Year 1990
Remodeled 2008
Interior Adj.
Other Features
Building Total & Improvement Details

Grade 350 100%
Percentage Complete 100
Total Adjusted Replacement Cost New $143,372
Physical Depreciation (% Bad) A 25%
Depreciated Value $107,529
Economic Depreciation (% Bad) 0
Functional Depreciation (% Bad) 0
Total Depreciated Value $107,529
Market Area Factor 1.00
Building Value $107,529
Misc Improvements Value $457
Total Improvement Value $107,986

Assessed Land Value $25,000
   
Assessed Total Value $203,000



Addition Summary 
StoryTypeCodeArea
1.00 WOOD DECK WDK 140
1.00 OPEN PORCH FIN OPF 56
1.00 GARAGE FINISH GRF 353
 
Other Improvements 
UnitsDescriptionItemCodeYear% BadValue
10x16 DIMENSIONS UTILITY METAL 1996 65 457
 


Building Sketch
Photograph
Building Sketch Building Photo
(Click sketch for bigger image)