Cumberland County
Building Summary

Data last updated on: 1/31/2026     Ownership current as of: 1/20/2026     Tax Year: 2026
REID 9496613758000

PIN # 9496-61-3758

Location Address Property Description
1900 GREEN CIR LAKEPOINT PLACE LO:90 SE:02 PL:0048-0078
   
Property Owner Owner's Mailing Address
THOMPSON, INIA;THOMPSON, MICCHICCO
1900 GREEN CIR
FAYETTEVILLE NC 28304
Parcel
Buildings
Misc Improvements
Land
Deeds
Documents
Notes
Sales
Sales Comparison
Photos
Building Location Address
1900 GREEN CIR
Building Description
R1-SINGLE-FAMILY-RES
Card   of  1
Bldg Type R1-SINGLE-FAMILY-RES
Units 0
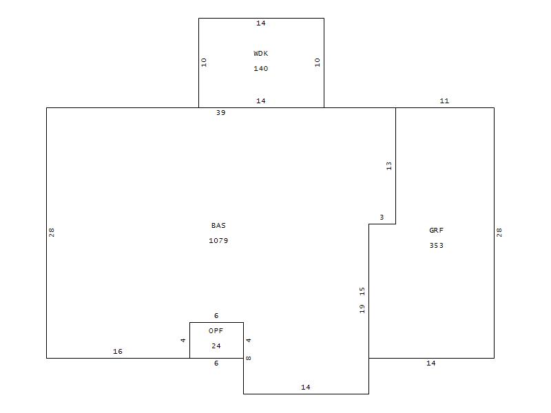
Living Area (SQFT) 1079
Number of Stories 1.00
Style 000002-STYLE
Foundation H-CNTFTG-SLBPLHT
Frame CONSTANT
Exterior 04-VINYL-SIDING
Const Type
Heating M-07&S-01
Air Cond AC-Y
Plumbing Baths (Full):   2
Baths (Half):   0
Extra Fixtures:   0
Total Plumbing Fixtures:   6 
Bedrooms 3
Floor 11-CARPET-COMB
Roof Cover 02-METAL ROOF
Roof Type 02-GABLE
Main Body (SQFT) 1079
Year Built 1991
Additions 3
Effective Year 1991
Remodeled 0
Interior Adj.
Other Features
Building Total & Improvement Details

Grade 350 100%
Percentage Complete 100
Total Adjusted Replacement Cost New $142,355
Physical Depreciation (% Bad) A 25%
Depreciated Value $106,766
Economic Depreciation (% Bad) 0
Functional Depreciation (% Bad) 0
Total Depreciated Value $106,766
Market Area Factor 1.00
Building Value $106,766
Misc Improvements Value
Total Improvement Value $106,766

Assessed Land Value $25,000
   
Assessed Total Value $204,900



Addition Summary 
StoryTypeCodeArea
1.00 GARAGE FINISH GRF 353
1.00 WOOD DECK WDK 140
1.00 OPEN PORCH FIN OPF 24
 
Other Improvements 
 


Building Sketch
Photograph
Building Sketch Building Photo
(Click sketch for bigger image)