Cumberland County
Building Summary

Data last updated on: 1/31/2026     Ownership current as of: 1/20/2026     Tax Year: 2026
REID 9496710043000

PIN # 9496-71-0043

Location Address Property Description
1911 WORDSWORTH DR LAKEPOINT PLACE LO:58 SE:02 PL:0048-0078
   
Property Owner Owner's Mailing Address
MORGAN, JACOB
1911 WORDSWORTH DRIVE
FAYETTEVILLE NC 28304
Parcel
Buildings
Misc Improvements
Land
Deeds
Documents
Notes
Sales
Sales Comparison
Photos
Building Location Address
1911 WORDSWORTH DR
Building Description
R1-SINGLE-FAMILY-RES
Card   of  1
Bldg Type R1-SINGLE-FAMILY-RES
Units 0
Living Area (SQFT) 1212
Number of Stories 1.00
Style 000002-STYLE
Foundation S-SLAB
Frame CONSTANT
Exterior 04-VINYL-SIDING
Const Type
Heating M-07&S-01
Air Cond AC-Y
Plumbing Baths (Full):   2
Baths (Half):   0
Extra Fixtures:   0
Total Plumbing Fixtures:   6 
Bedrooms 4
Floor 11-CARPET-COMB
Roof Cover 03-COMP SHINGLE
Roof Type 02-GABLE
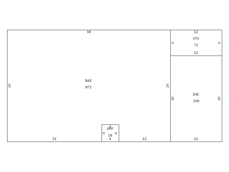
Main Body (SQFT) 972
Year Built 1982
Additions 3
Effective Year 1993
Remodeled 0
Interior Adj.
Other Features
Building Total & Improvement Details

Grade 350 100%
Percentage Complete 100
Total Adjusted Replacement Cost New $128,807
Physical Depreciation (% Bad) A 24%
Depreciated Value $97,893
Economic Depreciation (% Bad) 0
Functional Depreciation (% Bad) 0
Total Depreciated Value $97,893
Market Area Factor 1.00
Building Value $97,893
Misc Improvements Value $1,024
Total Improvement Value $98,917

Assessed Land Value $25,000
   
Assessed Total Value $206,300



Addition Summary 
StoryTypeCodeArea
1.00 OPEN PORCH FIN OPF 16
1.00 ENCL AREA AVER EAC 240
1.00 UTILITY UNFIN UTU 72
 
Other Improvements 
UnitsDescriptionItemCodeYear% BadValue
10x12 DIMENSIONS CONCRETE PATIO 1983 65 322
8x10 DIMENSIONS UTILITY FRAME 1983 65 702
 


Building Sketch
Photograph
Building Sketch Building Photo
(Click sketch for bigger image)