Cumberland County
Building Summary

Data last updated on: 1/31/2026     Ownership current as of: 1/20/2026     Tax Year: 2026
REID 9496713544000

PIN # 9496-71-3544

Location Address Property Description
6481 GREEN MEADOW RD LAKE POINT PLACE LO:18 SE:01 PL:0045-0004
   
Property Owner Owner's Mailing Address
NORTON, JANE A TRUSTEE
6481 GREEN MEADOW RD
FAYETTEVILLE NC 28304
Parcel
Buildings
Misc Improvements
Land
Deeds
Documents
Notes
Sales
Sales Comparison
Photos
Building Location Address
6481 GREEN MEADOW RD
Building Description
R1-SINGLE-FAMILY-RES
Card   of  1
Bldg Type R1-SINGLE-FAMILY-RES
Units 0
Living Area (SQFT) 1784
Number of Stories 1.00
Style 000002-STYLE
Foundation G-PIERS-W/CNTFWL
Frame CONSTANT
Exterior 11-BRICK-VENEER
Const Type
Heating M-05&S-01
Air Cond AC-Y
Plumbing Baths (Full):   2
Baths (Half):   0
Extra Fixtures:   0
Total Plumbing Fixtures:   6 
Bedrooms 3
Floor 11-CARPET-COMB
Roof Cover 03-COMP SHINGLE
Roof Type 02-GABLE
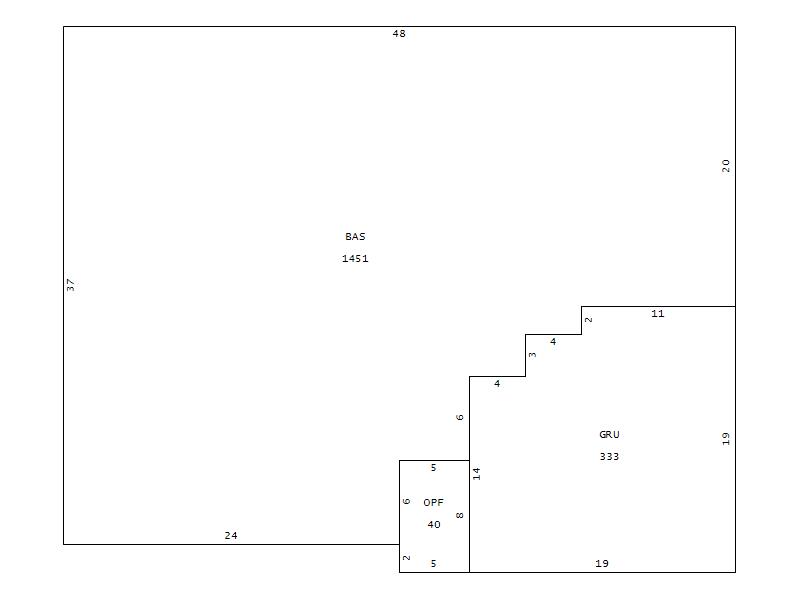
Main Body (SQFT) 1451
Year Built 1978
Additions 3
Effective Year 1988
Remodeled 0
Interior Adj.
Other Features
Building Total & Improvement Details

Grade 350 100%
Percentage Complete 100
Total Adjusted Replacement Cost New $203,811
Physical Depreciation (% Bad) A 26%
Depreciated Value $150,820
Economic Depreciation (% Bad) 0
Functional Depreciation (% Bad) 0
Total Depreciated Value $150,820
Market Area Factor 1.00
Building Value $150,820
Misc Improvements Value $2,972
Total Improvement Value $153,792

Assessed Land Value $25,000
   
Assessed Total Value $247,000



Addition Summary 
StoryTypeCodeArea
1.00 OPEN PORCH FIN OPF 40
1.00 BASE SEMI FIN BSF 333
1.00 OPEN PORCH FIN OPF 312
 
Other Improvements 
UnitsDescriptionItemCodeYear% BadValue
3x5 DIMENSIONS CONCRETE PATIO 1983 65 40
10X8 DIMENSIONS UTILITY FRAME 2023 12 2262
10X10 DIMENSIONS SHELTER 2023 13 670
 


Building Sketch
Photograph
Building Sketch Building Photo
(Click sketch for bigger image)