Cumberland County
Building Summary

Data last updated on: 1/30/2026     Ownership current as of: 1/20/2026     Tax Year: 2026
REID 9497521223000

PIN # 9497-52-1223

Location Address Property Description
3843 GLENCORRA DR REMINGTON NORTH LO:14 SE:01 PL:0120-0174
   
Property Owner Owner's Mailing Address
SCHREINER, REBECCA;RAMIREZ, JOSE
3843 GLENCORRA DR
FAYETTEVILLE NC 28314
Parcel
Buildings
Misc Improvements
Land
Deeds
Documents
Notes
Sales
Sales Comparison
Photos
Building Location Address
3843 GLENCORRA DR
Building Description
R1-SINGLE-FAMILY-RES
Card   of  1
Bldg Type R1-SINGLE-FAMILY-RES
Units 0
Living Area (SQFT) 2055
Number of Stories 1.00
Style 000002-STYLE
Foundation S-SLAB
Frame CONSTANT
Exterior 04-VINYL-SIDING
Const Type
Heating M-07&S-02
Air Cond AC-Y
Plumbing Baths (Full):   2
Baths (Half):   0
Extra Fixtures:   2
Total Plumbing Fixtures:   8 
Bedrooms 3
Roof Cover 03-COMP SHINGLE
Roof Type 05-HIP
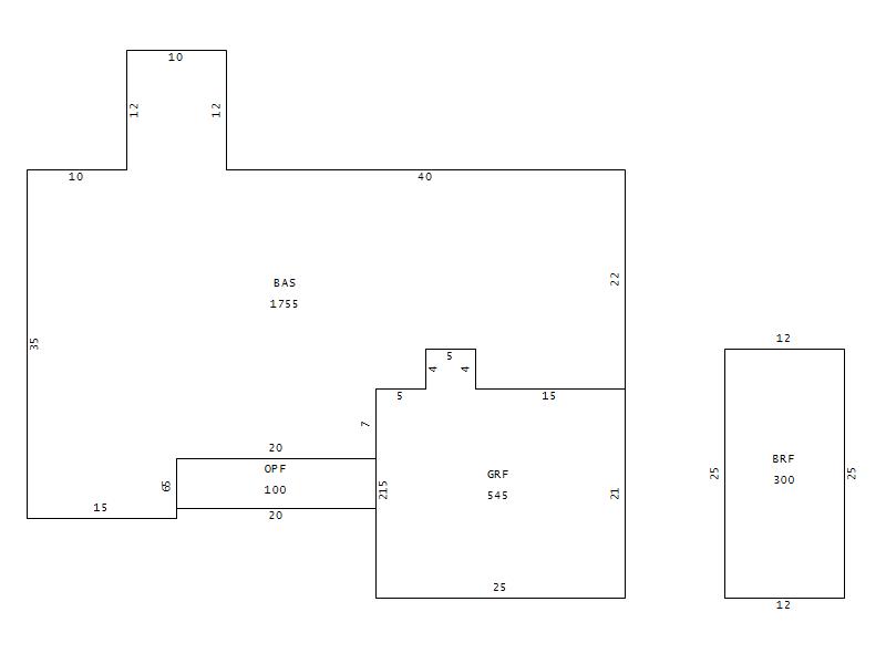
Main Body (SQFT) 1755
Year Built 2008
Additions 3
Effective Year 2008
Remodeled 0
Interior Adj.
Other Features
Building Total & Improvement Details

Grade 435 117%
Percentage Complete 100
Total Adjusted Replacement Cost New $264,887
Physical Depreciation (% Bad) A 13%
Depreciated Value $230,452
Economic Depreciation (% Bad) 0
Functional Depreciation (% Bad) 0
Total Depreciated Value $230,452
Market Area Factor 1.00
Building Value $230,452
Misc Improvements Value $387
Total Improvement Value $230,839

Assessed Land Value $55,000
   
Assessed Total Value $308,800



Addition Summary 
StoryTypeCodeArea
1.00 GARAGE FINISH GRF 545
1.00 OPEN PORCH FIN OPF 100
1.00 BONUS RM FINIS BRF 300
 
Other Improvements 
UnitsDescriptionItemCodeYear% BadValue
12x12 DIMENSIONS CONCRETE PATIO 2008 65 387
 


Building Sketch
Photograph
Building Sketch Building Photo
(Click sketch for bigger image)