Cumberland County
Building Summary

Data last updated on: 1/30/2026     Ownership current as of: 1/20/2026     Tax Year: 2026
REID 9497523471000

PIN # 9497-52-3471

Location Address Property Description
3830 GLENCORRA DR REMINGTON NORTH REV LO:62 SE:01 PL:0125-0135
   
Property Owner Owner's Mailing Address
BURKE-HAMILTON, TAMARA CAMILLA;HAMILTON, CLAYTON CONWAY
3830 GLENCORRA DRIVE
FAYETTEVILLE NC 28314
Parcel
Buildings
Misc Improvements
Land
Deeds
Documents
Notes
Sales
Sales Comparison
Photos
Building Location Address
3830 GLENCORRA DR
Building Description
R1-SINGLE-FAMILY-RES
Card   of  1
Bldg Type R1-SINGLE-FAMILY-RES
Units 0
Living Area (SQFT) 2930
Number of Stories 2.00
Style 000002-STYLE
Foundation S-SLAB
Frame CONSTANT
Exterior 04-VINYL-SIDING
Const Type
Heating M-07&S-01
Air Cond AC-Y
Plumbing Baths (Full):   2
Baths (Half):   1
Extra Fixtures:   2
Total Plumbing Fixtures:   10 
Bedrooms 4
Roof Cover 03-COMP SHINGLE
Roof Type 05-HIP
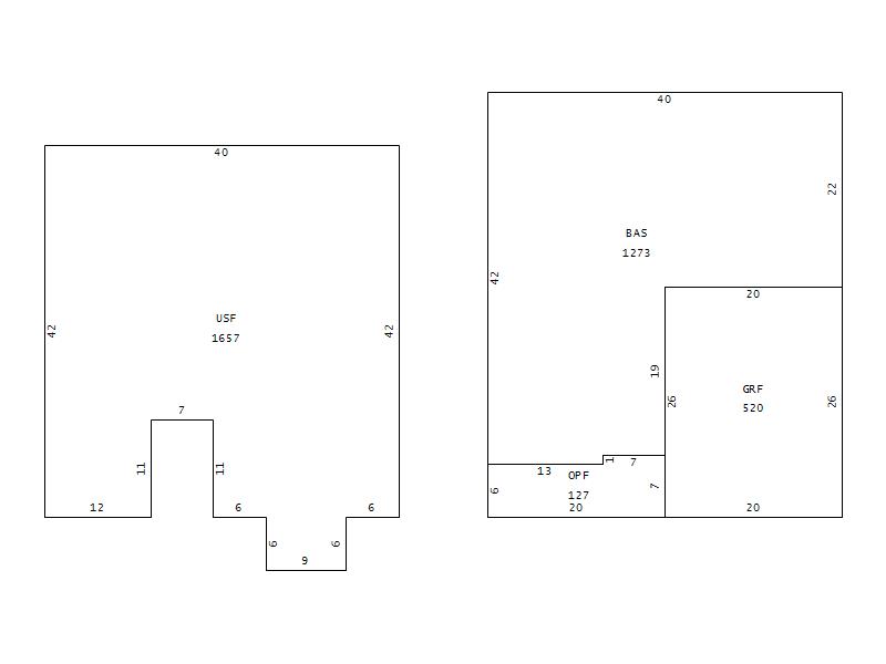
Main Body (SQFT) 1273
Year Built 2009
Additions 3
Effective Year 2009
Remodeled 0
Interior Adj.
Other Features
Building Total & Improvement Details

Grade 370 108%
Percentage Complete 100
Total Adjusted Replacement Cost New $332,774
Physical Depreciation (% Bad) A 17%
Depreciated Value $276,202
Economic Depreciation (% Bad) 0
Functional Depreciation (% Bad) 0
Total Depreciated Value $276,202
Market Area Factor 1.00
Building Value $276,202
Misc Improvements Value $442
Total Improvement Value $276,644

Assessed Land Value $55,000
   
Assessed Total Value $350,500



Addition Summary 
StoryTypeCodeArea
1.00 GARAGE FINISH GRF 520
1.00 OPEN PORCH FIN OPF 127
1.00 UPPER STY FIN USF 1657
 
Other Improvements 
UnitsDescriptionItemCodeYear% BadValue
12x12 DIMENSIONS CONCRETE PATIO 2009 60 442
 


Building Sketch
Photograph
Building Sketch Building Photo
(Click sketch for bigger image)