Cumberland County
Building Summary

Data last updated on: 1/30/2026     Ownership current as of: 1/20/2026     Tax Year: 2026
REID 9497528504000

PIN # 9497-52-8504

Location Address Property Description
3811 BRIARGATE LN REMINGTON NORTH LO:80 SE:01 PL:0120-0174
   
Property Owner Owner's Mailing Address
CRANKFIELD, THOMAS
3811 BRIARGATE LN
FAYETTEVILLE NC 28314
Parcel
Buildings
Misc Improvements
Land
Deeds
Documents
Notes
Sales
Sales Comparison
Photos
Building Location Address
3811 BRIARGATE LN
Building Description
R1-SINGLE-FAMILY-RES
Card   of  1
Bldg Type R1-SINGLE-FAMILY-RES
Units 0
Living Area (SQFT) 2138
Number of Stories 1.00
Style 000002-STYLE
Foundation G-PIERS-W/CNTFWL
Frame CONSTANT
Exterior 04-VINYL-SIDING
Const Type
Heating M-07&S-02
Air Cond AC-Y
Plumbing Baths (Full):   2
Baths (Half):   0
Extra Fixtures:   2
Total Plumbing Fixtures:   8 
Bedrooms 3
Roof Cover 03-COMP SHINGLE
Roof Type 02-GABLE
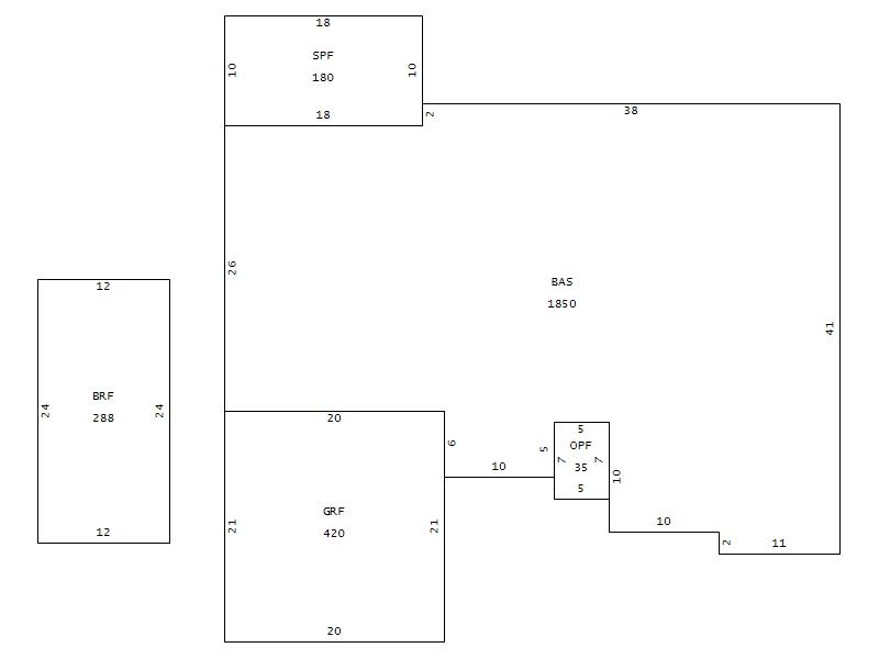
Main Body (SQFT) 1850
Year Built 2008
Additions 4
Effective Year 2008
Remodeled 0
Interior Adj.
Other Features
Building Total & Improvement Details

Grade 435 117%
Percentage Complete 100
Total Adjusted Replacement Cost New $280,483
Physical Depreciation (% Bad) A 13%
Depreciated Value $244,020
Economic Depreciation (% Bad) 0
Functional Depreciation (% Bad) 0
Total Depreciated Value $244,020
Market Area Factor 1.00
Building Value $244,020
Misc Improvements Value $368
Total Improvement Value $244,388

Assessed Land Value $55,000
   
Assessed Total Value $314,400



Addition Summary 
StoryTypeCodeArea
1.00 OPEN PORCH FIN OPF 35
1.00 GARAGE FINISH GRF 420
1.00 SCREEN PORCH F SPF 180
1.00 BONUS RM FINIS BRF 288
 
Other Improvements 
UnitsDescriptionItemCodeYear% BadValue
10x12 DIMENSIONS CONCRETE PATIO 2009 60 368
 


Building Sketch
Photograph
Building Sketch Building Photo
(Click sketch for bigger image)