Cumberland County
Building Summary

Data last updated on: 1/30/2026     Ownership current as of: 1/20/2026     Tax Year: 2026
REID 9497600619000

PIN # 9497-60-0619

Location Address Property Description
1174 HALLBERRY DR REMINGTON LO:208 SE:06 PL:0098-0122
   
Property Owner Owner's Mailing Address
PALANANISSI, AKLESSO
1174 HALLBERRY DR
FAYETTEVILLE NC 28314
Parcel
Buildings
Misc Improvements
Land
Deeds
Documents
Notes
Sales
Sales Comparison
Photos
Building Location Address
1174 HALLBERRY DR
Building Description
R1-SINGLE-FAMILY-RES
Card   of  1
Bldg Type R1-SINGLE-FAMILY-RES
Units 0
Living Area (SQFT) 1921
Number of Stories 1.75
Style 000002-STYLE
Foundation G-PIERS-W/CNTFWL
Frame CONSTANT
Exterior 12-BRICK/WOOD
Const Type
Heating M-07&S-02
Air Cond AC-Y
Plumbing Baths (Full):   3
Baths (Half):   0
Extra Fixtures:   3
Total Plumbing Fixtures:   12 
Bedrooms 4
Floor 11-CARPET-COMB
Roof Cover 03-COMP SHINGLE
Roof Type 02-GABLE
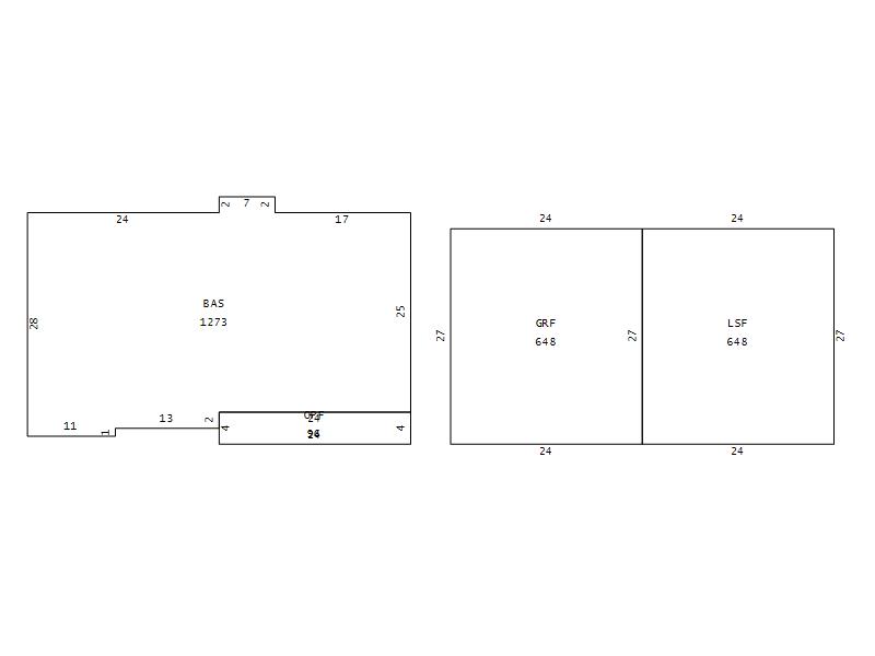
Main Body (SQFT) 1273
Year Built 1999
Additions 4
Effective Year 1999
Remodeled 0
Interior Adj.
Other Features
Building Total & Improvement Details

Grade 370 108%
Percentage Complete 100
Total Adjusted Replacement Cost New $272,886
Physical Depreciation (% Bad) A 22%
Depreciated Value $212,851
Economic Depreciation (% Bad) 0
Functional Depreciation (% Bad) 0
Total Depreciated Value $212,851
Market Area Factor 1.00
Building Value $212,851
Misc Improvements Value $1,727
Total Improvement Value $214,578

Assessed Land Value $55,000
   
Assessed Total Value $294,900



Addition Summary 
StoryTypeCodeArea
1.00 OPEN PORCH FIN OPF 96
1.00 GARAGE FINISH GRF 648
1.00 LOWER STY FIN LSF 648
1.00 SCREEN PORCH F SPF 192
 
Other Improvements 
UnitsDescriptionItemCodeYear% BadValue
8X14 DIMENSIONS UTILITY FRAME 2007 52 1727
 


Building Sketch
Photograph
Building Sketch Building Photo
(Click sketch for bigger image)