Cumberland County
Building Summary

Data last updated on: 1/30/2026     Ownership current as of: 1/20/2026     Tax Year: 2026
REID 9497701768000

PIN # 9497-70-1768

Location Address Property Description
1175 BLANKSHIRE RD REMINGTON LO:29 SE:2-PT1 PL:0081-0047
   
Property Owner Owner's Mailing Address
LEWIS, SEDRICK J;LEWIS, SHARONDA DAWSON
1175 BLANKSHIRE ROAD
FAYETTEVILLE NC 28314
Parcel
Buildings
Misc Improvements
Land
Deeds
Documents
Notes
Sales
Sales Comparison
Photos
Building Location Address
1175 BLANKSHIRE RD
Building Description
R1-SINGLE-FAMILY-RES
Card   of  1
Bldg Type R1-SINGLE-FAMILY-RES
Units 0
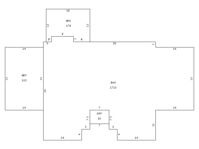
Living Area (SQFT) 1713
Number of Stories 1.00
Style 000002-STYLE
Foundation G-PIERS-W/CNTFWL
Frame CONSTANT
Exterior 11-BRICK-VENEER
Const Type
Heating M-07&S-02
Air Cond AC-Y
Plumbing Baths (Full):   2
Baths (Half):   0
Extra Fixtures:   2
Total Plumbing Fixtures:   8 
Bedrooms 3
Floor 11-CARPET-COMB
Roof Cover 03-COMP SHINGLE
Roof Type 02-GABLE
Main Body (SQFT) 1713
Year Built 1993
Additions 3
Effective Year 1993
Remodeled 0
Interior Adj.
Other Features
Building Total & Improvement Details

Grade 370 108%
Percentage Complete 100
Total Adjusted Replacement Cost New $228,410
Physical Depreciation (% Bad) A 24%
Depreciated Value $173,592
Economic Depreciation (% Bad) 0
Functional Depreciation (% Bad) 0
Total Depreciated Value $173,592
Market Area Factor 1.00
Building Value $173,592
Misc Improvements Value $4,642
Total Improvement Value $178,234

Assessed Land Value $55,000
   
Assessed Total Value $253,000



Addition Summary 
StoryTypeCodeArea
1.00 WOOD DECK WDK 176
1.00 GARAGE FINISH GRF 322
1.00 OPEN PORCH FIN OPF 35
 
Other Improvements 
UnitsDescriptionItemCodeYear% BadValue
16x12 DIMENSIONS UTILITY FRAME 1994 65 3347
8x10 DIMENSIONS UTILITY FRAME 2004 60 1295
 


Building Sketch
Photograph
Building Sketch Building Photo
(Click sketch for bigger image)