Cumberland County
Building Summary

Data last updated on: 1/30/2026     Ownership current as of: 1/20/2026     Tax Year: 2026
REID 9497715421000

PIN # 9497-71-5421

Location Address Property Description
6578 BARLEY HILL CT REMINGTON LO:52 SE:2-3 PL:0089-0075
   
Property Owner Owner's Mailing Address
INGE, RAY;INGE, DOMINIQUE ROXANNA
6578 BARLEY HILL CT
FAYETTEVILLE NC 28314
Parcel
Buildings
Misc Improvements
Land
Deeds
Documents
Notes
Sales
Sales Comparison
Photos
Building Location Address
6578 BARLEY HILL CT
Building Description
R1-SINGLE-FAMILY-RES
Card   of  1
Bldg Type R1-SINGLE-FAMILY-RES
Units 0
Living Area (SQFT) 1860
Number of Stories 1.75
Style 000002-STYLE
Foundation C-COMBO/SLAB/CSP
Frame CONSTANT
Exterior 12-BRICK/WOOD
Const Type
Heating M-07&S-02
Air Cond AC-Y
Plumbing Baths (Full):   3
Baths (Half):   0
Extra Fixtures:   0
Total Plumbing Fixtures:   9 
Bedrooms 4
Floor 11-CARPET-COMB
Roof Cover 03-COMP SHINGLE
Roof Type 05-HIP
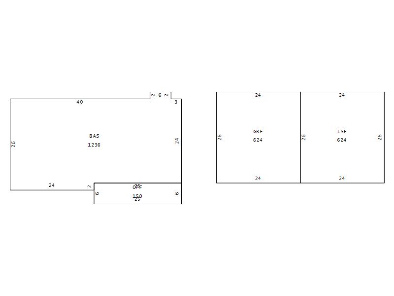
Main Body (SQFT) 1236
Year Built 1996
Additions 3
Effective Year 1996
Remodeled 0
Interior Adj.
Other Features
Building Total & Improvement Details

Grade 370 108%
Percentage Complete 100
Total Adjusted Replacement Cost New $250,389
Physical Depreciation (% Bad) A 23%
Depreciated Value $192,800
Economic Depreciation (% Bad) 0
Functional Depreciation (% Bad) 0
Total Depreciated Value $192,800
Market Area Factor 1.00
Building Value $192,800
Misc Improvements Value $1,287
Total Improvement Value $194,087

Assessed Land Value $55,000
   
Assessed Total Value $277,200



Addition Summary 
StoryTypeCodeArea
1.00 OPEN PORCH FIN OPF 150
1.00 GARAGE FINISH GRF 624
1.00 LOWER STY FIN LSF 624
 
Other Improvements 
UnitsDescriptionItemCodeYear% BadValue
12x12 DIMENSIONS CONCRETE PATIO 1997 65 387
10x8 DIMENSIONS UTILITY FRAME 1998 65 900
 


Building Sketch
Photograph
Building Sketch Building Photo
(Click sketch for bigger image)