Cumberland County
Building Summary

Data last updated on: 12/31/2025     Ownership current as of: 12/30/2025     Tax Year: 2026
REID 9497731208000

PIN # 9497-73-1208

Location Address Property Description
6869 OLD BUNCE RD 1 ACRE SHAW LD IMP
   
Property Owner Owner's Mailing Address
MYERS, MARISSA RENEE;MYERS, AVERY
6869 OLD BUNCE ROAD
FAYETTEVILLE NC 28314
Parcel
Buildings
Misc Improvements
Land
Deeds
Documents
Notes
Sales
Sales Comparison
Photos
Building Location Address
6869 OLD BUNCE RD
Building Description
R1-SINGLE-FAMILY-RES
Card   of  1
Bldg Type R1-SINGLE-FAMILY-RES
Units 0
Living Area (SQFT) 2076
Number of Stories 2.00
Style 000002-STYLE
Foundation G-PIERS-W/CNTFWL
Frame CONSTANT
Exterior 12-BRICK/WOOD
Const Type
Heating M-07&S-01
Air Cond AC-Y
Plumbing Baths (Full):   2
Baths (Half):   0
Extra Fixtures:   0
Total Plumbing Fixtures:   6 
Bedrooms 3
Floor 09-HARDWD-PARQUE
Roof Cover 03-COMP SHINGLE
Roof Type 02-GABLE
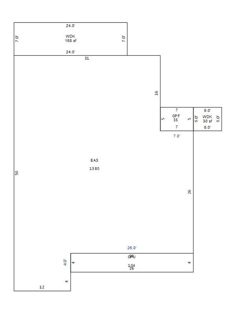
Main Body (SQFT) 1580
Year Built 1960
Additions 5
Effective Year 1983
Remodeled 0
Interior Adj.
Other Features
Building Total & Improvement Details

Grade 350 100%
Percentage Complete 100
Total Adjusted Replacement Cost New $223,273
Physical Depreciation (% Bad) A 29%
Depreciated Value $158,524
Economic Depreciation (% Bad) 0
Functional Depreciation (% Bad) 0
Total Depreciated Value $158,524
Market Area Factor 1.00
Building Value $158,524
Misc Improvements Value $403
Total Improvement Value $158,927

Assessed Land Value $40,500
   
Assessed Total Value $238,000



Addition Summary 
StoryTypeCodeArea
1.00 OPEN POR UNFIN OPU 104
1.00 OPEN PORCH FIN OPF 35
1.00 WOOD DECK WDK 168
1.00 WOOD DECK WDK 30
1.00 UPPER STY FIN USF 496
 
Other Improvements 
UnitsDescriptionItemCodeYear% BadValue
10x15 DIMENSIONS CONCRETE PATIO 1983 65 403
 


Building Sketch
Photograph
Building Sketch Building Photo
(Click sketch for bigger image)