Cumberland County
Building Summary

Data last updated on: 12/15/2025     Ownership current as of: 12/9/2025     Tax Year: 2025
REID 0403896988000

PIN # 0403-89-6988

Location Address Property Description
5574 HEATHER ST FAIRWAY FOREST LO:3 SE:1-PT1 PL:0052-0077
   
Property Owner Owner's Mailing Address
HARRIS, OREN R
5574 HEATHER STREET
HOPE MILLS NC 28348
Parcel
Buildings
Misc Improvements
Land
Deeds
Documents
Notes
Sales
Sales Comparison
Photos
Building Location Address
5574 HEATHER ST
Building Description
R1-SINGLE-FAMILY-RES
Card   of  1
Bldg Type R1-SINGLE-FAMILY-RES
Units 0
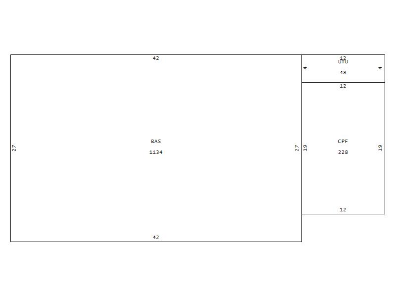
Living Area (SQFT) 1134
Number of Stories 1.00
Style 000002-STYLE
Foundation S-SLAB
Frame CONSTANT
Exterior 12-BRICK/WOOD
Const Type
Heating M-07&S-01
Air Cond AC-Y
Plumbing Baths (Full):   1
Baths (Half):   1
Extra Fixtures:   0
Total Plumbing Fixtures:   5 
Bedrooms 3
Floor 12-CARPET
Roof Cover 03-COMP SHINGLE
Roof Type 02-GABLE
Main Body (SQFT) 1134
Year Built 1983
Additions 2
Effective Year 1983
Remodeled 0
Interior Adj.
Other Features
Building Total & Improvement Details

Grade 350 100%
Percentage Complete 100
Total Adjusted Replacement Cost New $129,580
Physical Depreciation (% Bad) A 29%
Depreciated Value $92,002
Economic Depreciation (% Bad) 0
Functional Depreciation (% Bad) 0
Total Depreciated Value $92,002
Market Area Factor 1.00
Building Value $92,002
Misc Improvements Value $181
Total Improvement Value $92,183

Assessed Land Value $35,000
   
Assessed Total Value $180,700



Addition Summary 
StoryTypeCodeArea
1.00 UTILITY UNFIN UTU 48
1.00 CARPORT FINISH CPF 228
 
Other Improvements 
UnitsDescriptionItemCodeYear% BadValue
8x10 DIMENSIONS UTILITY METAL 1996 65 181
 


Building Sketch
Photograph
Building Sketch Building Photo
(Click sketch for bigger image)