Cumberland County
Building Summary

Data last updated on: 2/2/2026     Ownership current as of: 1/20/2026     Tax Year: 2026
REID 9498428268203

PIN # 9498-42-8268.203

Location Address Property Description
6771 6 WILLOWBROOK DR STEWARTS CREEK CONDO PH:21 PL:0002-0153 UN:6 BU:21
   
Property Owner Owner's Mailing Address
SMITH, MICHAEL J
6771 WILLOWBROOK DR #6
FAYETTEVILLE NC 28314
Parcel
Buildings
Misc Improvements
Land
Deeds
Documents
Notes
Sales
Sales Comparison
Photos
Building Location Address
6771 WILLOWBROOK DR
Building Description
R4-CONDOMINIUM
Card   of  1
Bldg Type R4-CONDOMINIUM
Units 0
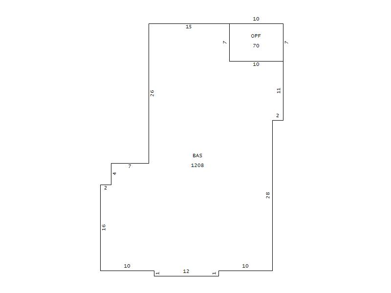
Living Area (SQFT) 1208
Number of Stories 1.00
Style 000002-STYLE
Foundation G-PIERS-W/CNTFWL
Frame CONSTANT
Exterior 05-DELUX-WOOD-SIDING
Const Type
Heating M-07&S-01
Air Cond AC-Y
Plumbing Baths (Full):   2
Baths (Half):   0
Extra Fixtures:   0
Total Plumbing Fixtures:   6 
Bedrooms 3
Floor 11-CARPET-COMB
Roof Cover 03-COMP SHINGLE
Roof Type 02-GABLE
Main Body (SQFT) 1208
Year Built 1987
Additions 1
Effective Year 1987
Remodeled 0
Interior Adj.
Other Features
Building Total & Improvement Details

Grade 350 100%
Percentage Complete 100
Total Adjusted Replacement Cost New $117,593
Physical Depreciation (% Bad) A 27%
Depreciated Value $85,843
Economic Depreciation (% Bad) 0
Functional Depreciation (% Bad) 0
Total Depreciated Value $85,843
Market Area Factor 1.00
Building Value $85,843
Misc Improvements Value
Total Improvement Value $85,843

Assessed Land Value $12,000
   
Assessed Total Value $105,600



Addition Summary 
StoryTypeCodeArea
1.00 OPEN PORCH FIN OPF 70
 
Other Improvements 
 


Building Sketch
Photograph
Building Sketch Building Photo
(Click sketch for bigger image)