Cumberland County
Building Summary

Data last updated on: 2/2/2026     Ownership current as of: 1/20/2026     Tax Year: 2026
REID 9498523383202

PIN # 9498-52-3383.202

Location Address Property Description
6756 5 WILLOWBROOK DR STEWARTS CREEK PH:4 PL:0001-0102 UN:8 BU:4
   
Property Owner Owner's Mailing Address
SUNAS LLC
68 TIMBERLINE DR
NASHUA NH 03062
Parcel
Buildings
Misc Improvements
Land
Deeds
Documents
Notes
Sales
Sales Comparison
Photos
Building Location Address
6756 WILLOWBROOK DR
Building Description
R4-CONDOMINIUM
Card   of  1
Bldg Type R4-CONDOMINIUM
Units 0
Living Area (SQFT) 1050
Number of Stories 1.00
Style 000002-STYLE
Foundation G-PIERS-W/CNTFWL
Frame CONSTANT
Exterior 05-DELUX-WOOD-SIDING
Const Type
Heating M-07&S-01
Air Cond AC-Y
Plumbing Baths (Full):   2
Baths (Half):   0
Extra Fixtures:   0
Total Plumbing Fixtures:   6 
Bedrooms 2
Floor 12-CARPET
Roof Cover 03-COMP SHINGLE
Roof Type 02-GABLE
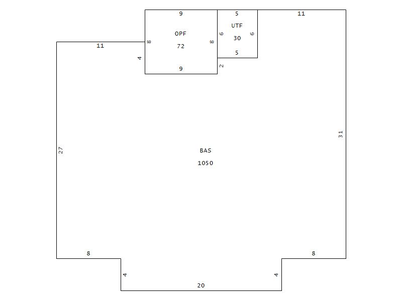
Main Body (SQFT) 1050
Year Built 1986
Additions 2
Effective Year 1986
Remodeled 0
Interior Adj.
Other Features
Building Total & Improvement Details

Grade 350 100%
Percentage Complete 100
Total Adjusted Replacement Cost New $108,257
Physical Depreciation (% Bad) A 27%
Depreciated Value $79,028
Economic Depreciation (% Bad) 0
Functional Depreciation (% Bad) 0
Total Depreciated Value $79,028
Market Area Factor 1.00
Building Value $79,028
Misc Improvements Value
Total Improvement Value $79,028

Assessed Land Value $12,000
   
Assessed Total Value $98,000



Addition Summary 
StoryTypeCodeArea
1.00 UTILITY FIN UTF 30
1.00 OPEN PORCH FIN OPF 72
 
Other Improvements 
 


Building Sketch
Photograph
Building Sketch Building Photo
(Click sketch for bigger image)