Cumberland County
Building Summary

Data last updated on: 2/2/2026     Ownership current as of: 1/20/2026     Tax Year: 2026
REID 9498524195201

PIN # 9498-52-4195.201

Location Address Property Description
6748 4 WILLOWBROOK DR STEWARTS CREEK PH:03 PL:0001-0082 UN:7 BU:3
   
Property Owner Owner's Mailing Address
MANZUETA, VICMAR VINCENTE
6748 WILLOWBROOK DR #4
FAYETTEVILLE NC 28314
Parcel
Buildings
Misc Improvements
Land
Deeds
Documents
Notes
Sales
Sales Comparison
Photos
Building Location Address
6748 WILLOWBROOK DR
Building Description
R4-CONDOMINIUM
Card   of  1
Bldg Type R4-CONDOMINIUM
Units 0
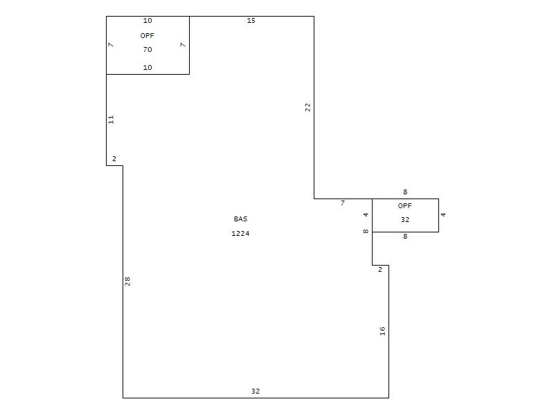
Living Area (SQFT) 1224
Number of Stories 1.00
Style 000002-STYLE
Foundation G-PIERS-W/CNTFWL
Frame CONSTANT
Exterior 05-DELUX-WOOD-SIDING
Const Type
Heating M-07&S-01
Air Cond AC-Y
Plumbing Baths (Full):   2
Baths (Half):   0
Extra Fixtures:   0
Total Plumbing Fixtures:   6 
Bedrooms 3
Floor 12-CARPET
Roof Cover 03-COMP SHINGLE
Roof Type 02-GABLE
Main Body (SQFT) 1224
Year Built 1985
Additions 2
Effective Year 1985
Remodeled 0
Interior Adj.
Other Features
Building Total & Improvement Details

Grade 350 100%
Percentage Complete 100
Total Adjusted Replacement Cost New $120,030
Physical Depreciation (% Bad) A 28%
Depreciated Value $86,422
Economic Depreciation (% Bad) 0
Functional Depreciation (% Bad) 0
Total Depreciated Value $86,422
Market Area Factor 1.00
Building Value $86,422
Misc Improvements Value
Total Improvement Value $86,422

Assessed Land Value $12,000
   
Assessed Total Value $106,400



Addition Summary 
StoryTypeCodeArea
1.00 OPEN PORCH FIN OPF 70
1.00 OPEN PORCH FIN OPF 32
 
Other Improvements 
 


Building Sketch
Photograph
Building Sketch Building Photo
(Click sketch for bigger image)