Cumberland County
Building Summary

Data last updated on: 1/30/2026     Ownership current as of: 1/20/2026     Tax Year: 2026
REID 0403932343000

PIN # 0403-93-2343

Location Address Property Description
5830 FINISH LINE DR ARLINGTON PLANTATION REV LO:61 SE:7PT-A PL:0090-0018
   
Property Owner Owner's Mailing Address
HILTON, KRISTINE D;HILTON, QUINNELL JARON
5830 FINISH LINE DRIVE
HOPE MILLS NC 28348
Parcel
Buildings
Misc Improvements
Land
Deeds
Documents
Notes
Sales
Sales Comparison
Photos
Building Location Address
5830 FINISH LINE DR
Building Description
R1-SINGLE-FAMILY-RES
Card   of  1
Bldg Type R1-SINGLE-FAMILY-RES
Units 0
Living Area (SQFT) 1706
Number of Stories 2.00
Style 000002-STYLE
Foundation G-PIERS-W/CNTFWL
Frame CONSTANT
Exterior 04-VINYL-SIDING
Const Type
Heating M-07&S-02
Air Cond AC-Y
Plumbing Baths (Full):   2
Baths (Half):   1
Extra Fixtures:   2
Total Plumbing Fixtures:   10 
Bedrooms 3
Floor 11-CARPET-COMB
Roof Cover 03-COMP SHINGLE
Roof Type 02-GABLE
Main Body (SQFT) 912
Year Built 1996
Additions 5
Effective Year 1996
Remodeled 0
Interior Adj.
Other Features
Building Total & Improvement Details

Grade 370 108%
Percentage Complete 100
Total Adjusted Replacement Cost New $242,757
Physical Depreciation (% Bad) A 23%
Depreciated Value $186,923
Economic Depreciation (% Bad) 0
Functional Depreciation (% Bad) 0
Total Depreciated Value $186,923
Market Area Factor 1.00
Building Value $186,923
Misc Improvements Value $4,241
Total Improvement Value $191,164

Assessed Land Value $33,000
   
Assessed Total Value $292,200



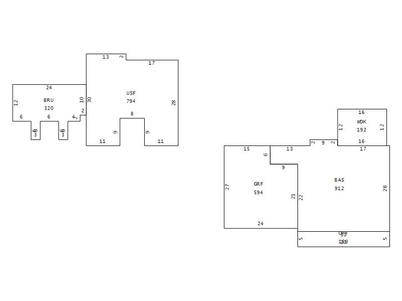
Addition Summary 
StoryTypeCodeArea
1.00 WOOD DECK WDK 192
1.00 OPEN PORCH FIN OPF 150
1.00 GARAGE FINISH GRF 594
1.00 UPPER STY FIN USF 794
1.00 BONUS RM UNFIN BRU 320
 
Other Improvements 
UnitsDescriptionItemCodeYear% BadValue
15X10 DIMENSIONS UTILITY FRAME 2023 12 4241
 


Building Sketch
Photograph
Building Sketch Building Photo
(Click sketch for bigger image)