Cumberland County
Building Summary

Data last updated on: 1/30/2026     Ownership current as of: 1/20/2026     Tax Year: 2026
REID 0403934490000

PIN # 0403-93-4490

Location Address Property Description
5709 PROSPECTOR CT ARLINGTON PLANTATION REV LO:63 SE:7PT-A PL:0090-0018
   
Property Owner Owner's Mailing Address
HAMILTON, MARYSOL;HAMILTON, PAUL R
5709 PROSPECTOR CT
HOPE MILLS NC 28348

Value subject to change, property assessment under review

Parcel
Buildings
Misc Improvements
Land
Deeds
Documents
Notes
Sales
Photos
Building Location Address
5709 PROSPECTOR CT
Building Description
R1-SINGLE-FAMILY-RES
Card   of  1
Bldg Type R1-SINGLE-FAMILY-RES
Units 0
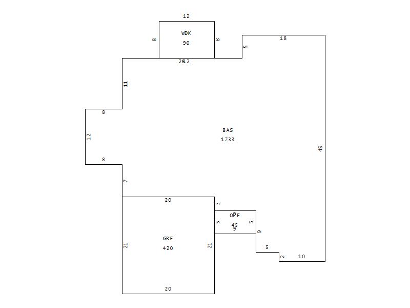
Living Area (SQFT) 1733
Number of Stories 1.00
Style 000002-STYLE
Foundation G-PIERS-W/CNTFWL
Frame CONSTANT
Exterior 04-VINYL-SIDING
Const Type
Heating M-07&S-01
Air Cond AC-Y
Plumbing Baths (Full):   2
Baths (Half):   0
Extra Fixtures:   2
Total Plumbing Fixtures:   8 
Bedrooms 3
Roof Cover 03-COMP SHINGLE
Roof Type 02-GABLE
Main Body (SQFT) 1733
Year Built 2004
Additions 3
Effective Year 2004
Remodeled 0
Interior Adj.
Other Features
Building Total & Improvement Details

Grade 370 108%
Percentage Complete 100
Total Adjusted Replacement Cost New
Physical Depreciation (% Bad) A 19%
Depreciated Value
Economic Depreciation (% Bad) 0
Functional Depreciation (% Bad) 0
Total Depreciated Value
Market Area Factor 1.00
Building Value
Misc Improvements Value
Total Improvement Value

Assessed Land Value
   
Assessed Total Value



Addition Summary 
StoryTypeCodeArea
1.00 OPEN PORCH FIN OPF 45
1.00 GARAGE FINISH GRF 420
1.00 WOOD DECK WDK 96
 
Other Improvements 
 


Building Sketch
Photograph
Building Sketch Building Photo
(Click sketch for bigger image)