Cumberland County
Building Summary

Data last updated on: 1/25/2026     Ownership current as of: 1/20/2026     Tax Year: 2026
REID 0445742458000

PIN # 0445-74-2458

Location Address Property Description
2272 FIELDS RD RODNEY T HORNE LO:1B PL:137-064
   
Property Owner Owner's Mailing Address
FOX, ZACHARY ALEXANDER;FOX, TABITHA M
2272 FIELDS RD
FAYETTEVILLE NC 28312
Parcel
Buildings
Misc Improvements
Land
Deeds
Documents
Notes
Sales
Sales Comparison
Photos
Building Location Address
2272 FIELDS RD
Building Description
R3-MANUF-DOUBLEWIDE
Card   of  1
Bldg Type R3-MANUF-DOUBLEWIDE
Units 0
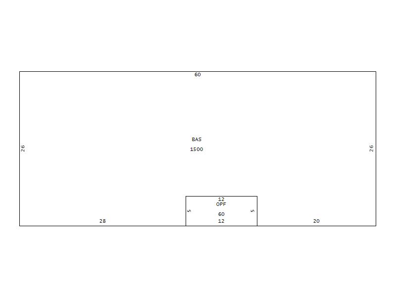
Living Area (SQFT) 1500
Number of Stories 1.00
Style 000002-STYLE
Foundation P-PIERS
Frame CONSTANT
Exterior 04-VINYL-SIDING
Const Type
Heating M-07&S-01
Air Cond AC-Y
Plumbing Baths (Full):   2
Baths (Half):   0
Extra Fixtures:   0
Total Plumbing Fixtures:   6 
Bedrooms 3
Floor 11-CARPET-COMB
Roof Cover 03-COMP SHINGLE
Roof Type 02-GABLE
Main Body (SQFT) 1500
Year Built 1998
Additions 1
Effective Year 1998
Remodeled 0
Interior Adj.
Other Features
Building Total & Improvement Details

Grade D350 97%
Percentage Complete 100
Total Adjusted Replacement Cost New $108,011
Physical Depreciation (% Bad) A 42%
Depreciated Value $62,646
Economic Depreciation (% Bad) 0
Functional Depreciation (% Bad) 0
Total Depreciated Value $62,646
Market Area Factor 1.00
Building Value $62,646
Misc Improvements Value $13,205
Total Improvement Value $75,851

Assessed Land Value $36,250
   
Assessed Total Value $196,900



Addition Summary 
StoryTypeCodeArea
1.00 OPEN PORCH FIN OPF 60
 
Other Improvements 
UnitsDescriptionItemCodeYear% BadValue
36x24 DIMENSIONS GARAGE METAL UNFINISHED 2023 12 13205
 


Building Sketch
Photograph
Building Sketch Building Photo
(Click sketch for bigger image)