Cumberland County
Building Summary

Data last updated on: 1/25/2026     Ownership current as of: 1/20/2026     Tax Year: 2026
REID 0422002639000

PIN # 0422-00-2639

Location Address Property Description
7033 ROSLIN FARM RD CANADY & HUNSUCKER RECOMB LO:1 PL:00139-0113
   
Property Owner Owner's Mailing Address
BELLIS, SARIKA
7033 ROSLIN FARM RD
HOPE MILLS NC 28348
Parcel
Buildings
Misc Improvements
Land
Deeds
Documents
Notes
Sales
Sales Comparison
Photos
Building Location Address
7033 ROSLIN FARM RD
Building Description
R1-SINGLE-FAMILY-RES
Card   of  1
Bldg Type R1-SINGLE-FAMILY-RES
Units 0
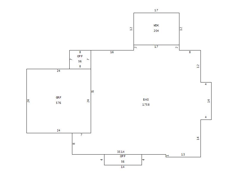
Living Area (SQFT) 1758
Number of Stories 1.00
Style 000002-STYLE
Foundation S-SLAB
Frame CONSTANT
Exterior 11-BRICK-VENEER
Const Type
Heating M-07&S-01
Air Cond AC-Y
Plumbing Baths (Full):   2
Baths (Half):   0
Extra Fixtures:   2
Total Plumbing Fixtures:   8 
Bedrooms 3
Roof Cover 03-COMP SHINGLE
Roof Type 02-GABLE
Main Body (SQFT) 1758
Year Built 2005
Additions 4
Effective Year 2005
Remodeled 0
Interior Adj.
Other Features
Building Total & Improvement Details

Grade 450 126%
Percentage Complete 100
Total Adjusted Replacement Cost New $284,765
Physical Depreciation (% Bad) A 15%
Depreciated Value $242,050
Economic Depreciation (% Bad) 0
Functional Depreciation (% Bad) 0
Total Depreciated Value $242,050
Market Area Factor 1.00
Building Value $242,050
Misc Improvements Value $11,348
Total Improvement Value $253,398

Assessed Land Value $32,680
   
Assessed Total Value $367,600



Addition Summary 
StoryTypeCodeArea
1.00 OPEN PORCH FIN OPF 56
1.00 GARAGE FINISH GRF 576
1.00 OPEN PORCH FIN OPF 56
1.00 WOOD DECK WDK 204
 
Other Improvements 
UnitsDescriptionItemCodeYear% BadValue
16X10 DIMENSIONS UTILITY FRAME 2023 12 4524
16X11 DIMENSIONS UTILITY FRAME 2023 12 4976
4X10 DIMENSIONS OPEN POR FIN 2023 12 997
4X10 DIMENSIONS DECK WOOD 2023 13 851
 


Building Sketch
Photograph
Building Sketch Building Photo
(Click sketch for bigger image)