Cumberland County
Building Summary

Data last updated on: 4/30/2026     Ownership current as of: 4/22/2026     Tax Year: 2026
REID 0408138783000

PIN # 0408-13-8783

Location Address Property Description
6010 RUGGLES CT MURRAY FORK LO:5 BL:A PL:0036-0048
   
Property Owner Owner's Mailing Address
LATORRE, DEMETRIO LOPEZ;VALLE, NATALIA CAROLINA HERNANDEZ DEL
6010 RUGGLES CT
FAYETTEVILLE NC 28314
Parcel
Buildings
Misc Improvements
Land
Deeds
Documents
Notes
Sales
Sales Comparison
Photos
Building Location Address
6010 RUGGLES CT
Building Description
R1-SINGLE-FAMILY-RES
Card   of  1
Bldg Type R1-SINGLE-FAMILY-RES
Units 0
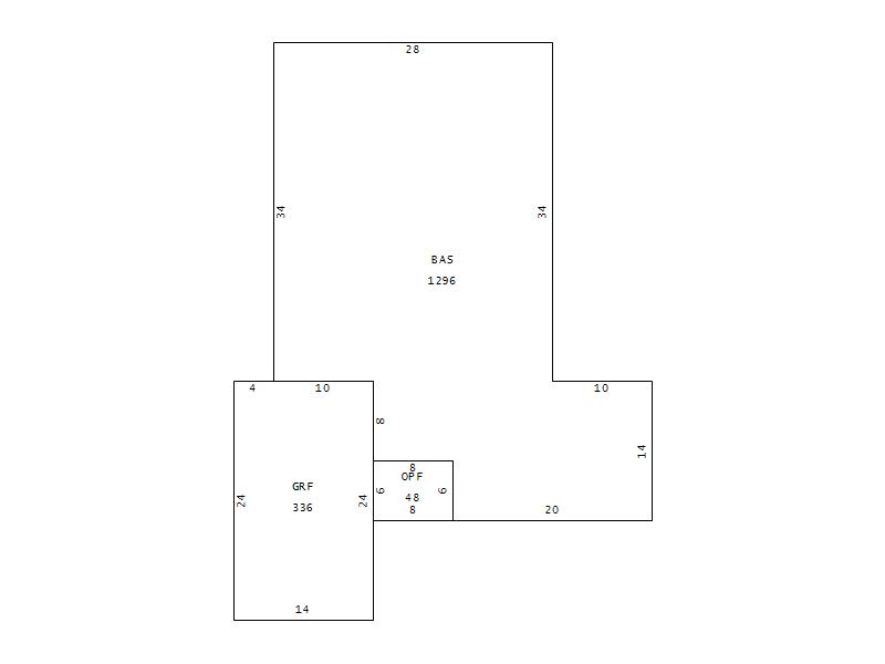
Living Area (SQFT) 1296
Number of Stories 1.00
Style 000002-STYLE
Foundation G-PIERS-W/CNTFWL
Frame CONSTANT
Exterior 03-MAS/ABST/OLD-WOOD
Const Type
Heating M-07&S-01
Air Cond AC-Y
Plumbing Baths (Full):   2
Baths (Half):   0
Extra Fixtures:   0
Total Plumbing Fixtures:   6 
Bedrooms 3
Floor 11-CARPET-COMB
Roof Cover 03-COMP SHINGLE
Roof Type 02-GABLE
Main Body (SQFT) 1296
Year Built 1978
Additions 2
Effective Year 1985
Remodeled 0
Interior Adj.
Other Features
Building Total & Improvement Details

Grade 350 100%
Percentage Complete 100
Total Adjusted Replacement Cost New $161,178
Physical Depreciation (% Bad) A 28%
Depreciated Value $116,048
Economic Depreciation (% Bad) 0
Functional Depreciation (% Bad) 0
Total Depreciated Value $116,048
Market Area Factor 1.00
Building Value $116,048
Misc Improvements Value $676
Total Improvement Value $116,724

Assessed Land Value $35,000
   
Assessed Total Value $200,100



Addition Summary 
StoryTypeCodeArea
1.00 GARAGE FINISH GRF 336
1.00 OPEN PORCH FIN OPF 48
 
Other Improvements 
UnitsDescriptionItemCodeYear% BadValue
14x18 DIMENSIONS CONCRETE PATIO 1983 65 676
 


Building Sketch
Photograph
Building Sketch Building Photo
(Click sketch for bigger image)