Cumberland County
Building Summary

Data last updated on: 1/30/2026     Ownership current as of: 1/20/2026     Tax Year: 2026
REID 9476691170000

PIN # 9476-69-1170

Location Address Property Description
2120 WILD RIDGE DR HOKE LOOP RIDGE SUBDIVISION LO:81 PL:00149-0189
   
Property Owner Owner's Mailing Address
NGUYEN, KIMBERLY;LE, MINH
2120 WILD RIDGE DRIVE
FAYETTEVILLE NC 28314
Parcel
Buildings
Misc Improvements
Land
Deeds
Documents
Notes
Sales
Sales Comparison
Photos
Building Location Address
2120 WILD RIDGE DR
Building Description
R1-SINGLE-FAMILY-RES
Card   of  1
Bldg Type R1-SINGLE-FAMILY-RES
Units 0
Living Area (SQFT) 2556
Number of Stories 2.00
Style 000088-STYLE
Foundation S-SLAB
Frame CONSTANT
Exterior 04-VINYL-SIDING
Const Type
Heating M-07&S-01
Air Cond AC-Y
Plumbing Baths (Full):   3
Baths (Half):   0
Extra Fixtures:   2
Total Plumbing Fixtures:   11 
Bedrooms 5
Roof Cover 03-COMP SHINGLE
Roof Type 02-GABLE
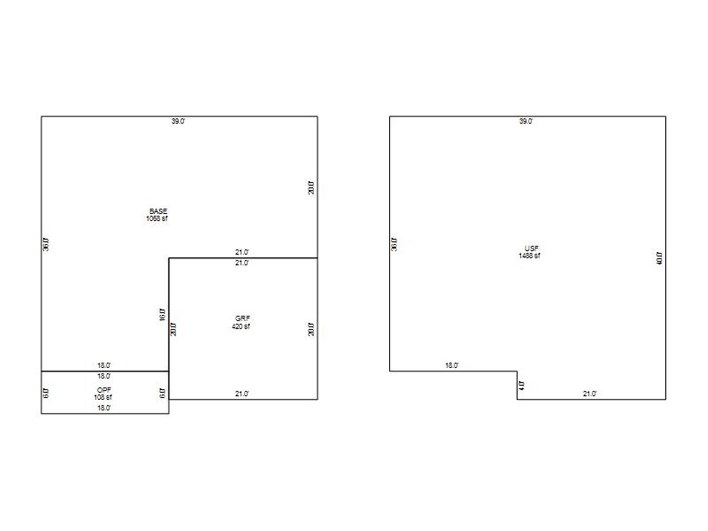
Main Body (SQFT) 1068
Year Built 2023
Additions 3
Effective Year 2023
Remodeled 0
Interior Adj.
Other Features
Building Total & Improvement Details

Grade 370 108%
Percentage Complete 100
Total Adjusted Replacement Cost New $290,558
Physical Depreciation (% Bad) V 2%
Depreciated Value $284,747
Economic Depreciation (% Bad) 0
Functional Depreciation (% Bad) 0
Total Depreciated Value $284,747
Market Area Factor 1.00
Building Value $284,747
Misc Improvements Value $801
Total Improvement Value $285,548

Assessed Land Value $68,500
   
Assessed Total Value $381,100



Addition Summary 
StoryTypeCodeArea
1.00 GARAGE FINISH GRF 420
1.00 OPEN PORCH FIN OPF 108
1.00 UPPER STY FIN USF 1488
 
Other Improvements 
UnitsDescriptionItemCodeYear% BadValue
10x12 DIMENSIONS CONCRETE PATIO 2023 13 801
 


Building Sketch
Photograph
Building Sketch Building Photo
(Click sketch for bigger image)