Cumberland County
Building Summary

Data last updated on: 3/12/2026     Ownership current as of: 3/2/2026     Tax Year: 2026
REID 0454096607000

PIN # 0454-09-6607

Location Address Property Description
3027 FIELDS RD NATIONWIDE LAND GROUP SUBDIVISION LO:4 PL:00152-0188
   
Property Owner Owner's Mailing Address
ROSS, CALEB G;DEROCHA, TAYLOR JACQULINE
3027 FIELDS RD
FAYETTEVILLE NC 28312

Value subject to change, property assessment under review

Parcel
Buildings
Misc Improvements
Land
Deeds
Documents
Notes
Sales
Photos
Building Location Address
3027 FIELDS RD
Building Description
R1-SINGLE-FAMILY-RES
Card   of  1
Bldg Type R1-SINGLE-FAMILY-RES
Units 0
Living Area (SQFT) 2803
Number of Stories 2.00
Style 000002-STYLE
Foundation S-SLAB
Frame CONSTANT
Exterior 04-VINYL-SIDING
Const Type
Heating M-07&S-01
Air Cond AC-Y
Plumbing Baths (Full):   3
Baths (Half):   0
Extra Fixtures:   3
Total Plumbing Fixtures:   12 
Bedrooms 4
Roof Cover 03-COMP SHINGLE
Roof Type 05-HIP
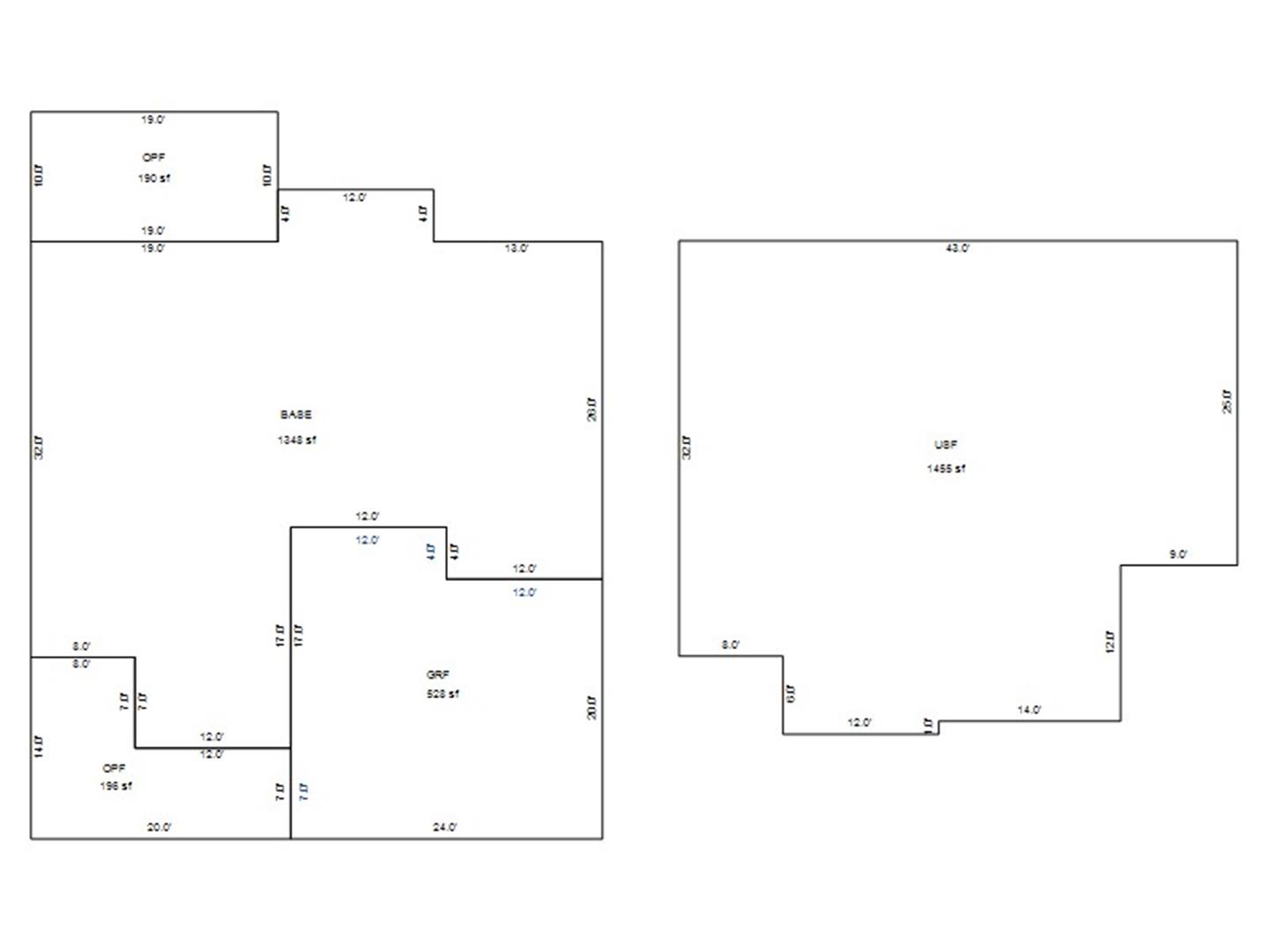
Main Body (SQFT) 1348
Year Built 2025
Additions 4
Effective Year 2025
Remodeled 0
Interior Adj.
Other Features
Building Total & Improvement Details

Grade 435 117%
Percentage Complete 100
Total Adjusted Replacement Cost New
Physical Depreciation (% Bad) E 1%
Depreciated Value
Economic Depreciation (% Bad) 0
Functional Depreciation (% Bad) 0
Total Depreciated Value
Market Area Factor 1.00
Building Value
Misc Improvements Value
Total Improvement Value

Assessed Land Value
   
Assessed Total Value



Addition Summary 
StoryTypeCodeArea
1.00 OPEN PORCH FIN OPF 190
1.00 OPEN PORCH FIN OPF 196
1.00 GARAGE FINISH GRF 528
1.00 UPPER STY FIN USF 1455
 
Other Improvements 
UnitsDescriptionItemCodeYear% BadValue
25x10 DIMENSIONS CONCRETE PATIO 2025 11
 


Building Sketch
Photograph
Building Sketch Building Photo
(Click sketch for bigger image)