Cumberland County
Building Summary

Data last updated on: 5/1/2026     Ownership current as of: 4/22/2026     Tax Year: 2026
REID 0408317413000

PIN # 0408-31-7413

Location Address Property Description
304 RAIL FENCE CT MURRAY FORK LO:18 SE:06 PL:0046-0018
   
Property Owner Owner's Mailing Address
ROMERO, CHRISTIAN DAVID;ROMERO, RAMSHA
304 RAIL FENCE CT
FAYETTEVILLE NC 28314
Parcel
Buildings
Misc Improvements
Land
Deeds
Documents
Notes
Sales
Sales Comparison
Photos
Building Location Address
304 RAIL FENCE CT
Building Description
R1-SINGLE-FAMILY-RES
Card   of  1
Bldg Type R1-SINGLE-FAMILY-RES
Units 0
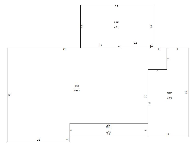
Living Area (SQFT) 1684
Number of Stories 1.00
Style 000002-STYLE
Foundation G-PIERS-W/CNTFWL
Frame CONSTANT
Exterior 11-BRICK-VENEER
Const Type
Heating M-07&S-01
Air Cond AC-Y
Plumbing Baths (Full):   2
Baths (Half):   0
Extra Fixtures:   0
Total Plumbing Fixtures:   6 
Bedrooms 3
Floor 11-CARPET-COMB
Roof Cover 03-COMP SHINGLE
Roof Type 02-GABLE
Main Body (SQFT) 1684
Year Built 1979
Additions 2
Effective Year 1988
Remodeled 0
Interior Adj.
Other Features
Building Total & Improvement Details

Grade 350 100%
Percentage Complete 100
Total Adjusted Replacement Cost New $210,541
Physical Depreciation (% Bad) A 26%
Depreciated Value $155,800
Economic Depreciation (% Bad) 0
Functional Depreciation (% Bad) 0
Total Depreciated Value $155,800
Market Area Factor 1.00
Building Value $155,800
Misc Improvements Value $2,060
Total Improvement Value $157,860

Assessed Land Value $35,000
   
Assessed Total Value $249,600



Addition Summary 
StoryTypeCodeArea
1.00 OPEN PORCH FIN OPF 145
1.00 GARAGE FINISH GRF 439
 
Other Improvements 
UnitsDescriptionItemCodeYear% BadValue
8x10 DIMENSIONS UTILITY FRAME 1990 65 900
27x16 DIMENSIONS CONCRETE PATIO 1983 65 1160
 


Building Sketch
Photograph
Building Sketch Building Photo
(Click sketch for bigger image)