Cumberland County
Building Summary

Data last updated on: 10/22/2025     Ownership current as of: 10/16/2025     Tax Year: 2025
REID 0412707934000

PIN # 0412-70-7934

Location Address Property Description
6628 CARRIAGE CROSSING RD ROSLIN FARMS WEST LO:135 PH:2 SE:1 PL:0128-0023
   
Property Owner Owner's Mailing Address
RODRIGUEZ-GREGORY, JOSE ANTONIO;RODRIGUEZ, ISIDRA INDIANA
6628 CARRIAGE CROSSING ROAD
HOPE MILLS NC 28348
Parcel
Buildings
Misc Improvements
Land
Deeds
Documents
Notes
Sales
Sales Comparison
Photos
Building Location Address
6628 CARRIAGE CROSSING RD
Building Description
R1-SINGLE-FAMILY-RES
Card   of  1
Bldg Type R1-SINGLE-FAMILY-RES
Units 0
Living Area (SQFT) 2941
Number of Stories 2.00
Style 000088-STYLE
Foundation D-CNTFTG-SLBONGD
Frame CONSTANT
Exterior 04-VINYL-SIDING
Const Type
Heating M-07&S-01
Air Cond AC-Y
Plumbing Baths (Full):   3
Baths (Half):   0
Extra Fixtures:   2
Total Plumbing Fixtures:   11 
Bedrooms 5
Roof Cover 03-COMP SHINGLE
Roof Type 05-HIP
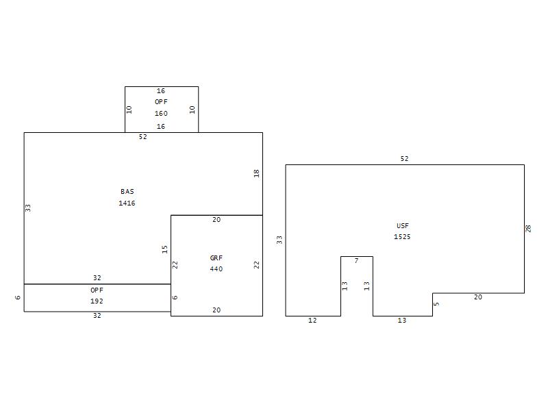
Main Body (SQFT) 1416
Year Built 2011
Additions 4
Effective Year 2011
Remodeled 0
Interior Adj.
Other Features
Building Total & Improvement Details

Grade 370 108%
Percentage Complete 100
Total Adjusted Replacement Cost New $343,125
Physical Depreciation (% Bad) A 16%
Depreciated Value $288,225
Economic Depreciation (% Bad) 0
Functional Depreciation (% Bad) 0
Total Depreciated Value $288,225
Market Area Factor 1.00
Building Value $288,225
Misc Improvements Value $21,903
Total Improvement Value $310,128

Assessed Land Value $40,000
   
Assessed Total Value $390,300



Addition Summary 
StoryTypeCodeArea
1.00 OPEN PORCH FIN OPF 160
1.00 OPEN PORCH FIN OPF 192
1.00 GARAGE FINISH GRF 440
1.00 UPPER STY FIN USF 1525
 
Other Improvements 
UnitsDescriptionItemCodeYear% BadValue
20x12 DIMENSIONS CARPORT UNFIN 2013 37 2552
8x10 DIMENSIONS UTILITY FRAME 2013 37 1619
1 UNITS SWIMMING POOL 2017 27 16807
18x10 DIMENSIONS CONCRETE PATIO 2017 33 925
 


Building Sketch
Photograph
Building Sketch Building Photo
(Click sketch for bigger image)