Cumberland County
Building Summary

Data last updated on: 1/30/2026     Ownership current as of: 1/20/2026     Tax Year: 2026
REID 0413021756000

PIN # 0413-02-1756

Location Address Property Description
5500 QUARTER POLE LN ARLINGTON PLANTATION LO:137 SE:08 PL:0099-0117
   
Property Owner Owner's Mailing Address
KING, JASON;KING, FELICIA
5500 QUARTER POLE LANE
HOPE MILLS NC 28348
Parcel
Buildings
Misc Improvements
Land
Deeds
Documents
Notes
Sales
Sales Comparison
Photos
Building Location Address
5500 QUARTER POLE LN
Building Description
R1-SINGLE-FAMILY-RES
Card   of  1
Bldg Type R1-SINGLE-FAMILY-RES
Units 0
Living Area (SQFT) 2103
Number of Stories 2.00
Style 000002-STYLE
Foundation G-PIERS-W/CNTFWL
Frame CONSTANT
Exterior 22-CONCRETE-SIDING
Const Type
Heating M-07&S-01
Air Cond AC-Y
Plumbing Baths (Full):   2
Baths (Half):   1
Extra Fixtures:   2
Total Plumbing Fixtures:   10 
Bedrooms 3
Floor 11-CARPET-COMB
Roof Cover 03-COMP SHINGLE
Roof Type 02-GABLE
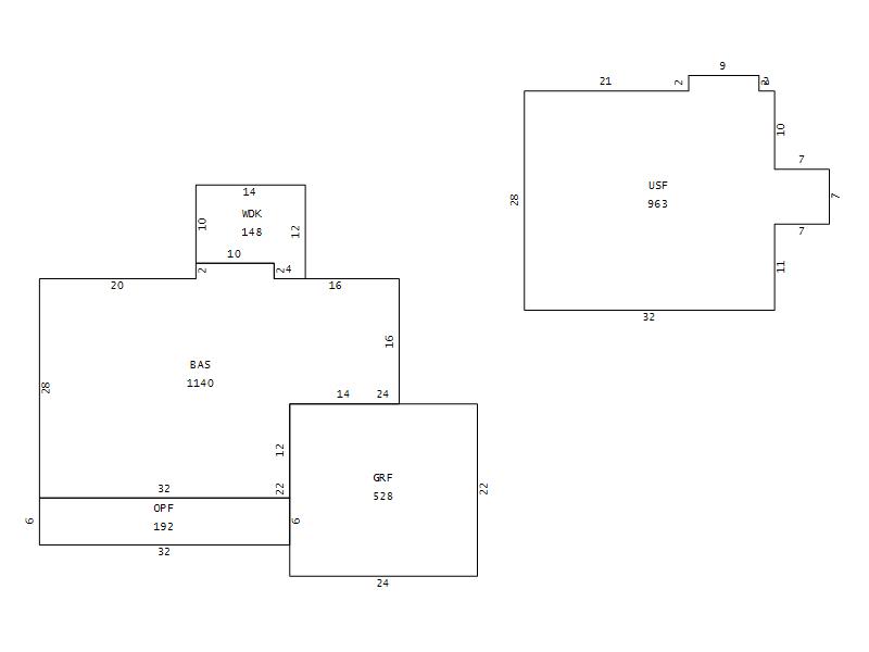
Main Body (SQFT) 1140
Year Built 1999
Additions 4
Effective Year 1999
Remodeled 0
Interior Adj.
Other Features
Building Total & Improvement Details

Grade 370 108%
Percentage Complete 100
Total Adjusted Replacement Cost New $278,354
Physical Depreciation (% Bad) A 22%
Depreciated Value $217,116
Economic Depreciation (% Bad) 0
Functional Depreciation (% Bad) 0
Total Depreciated Value $217,116
Market Area Factor 1.00
Building Value $217,116
Misc Improvements Value $5,396
Total Improvement Value $222,512

Assessed Land Value $33,000
   
Assessed Total Value $321,600



Addition Summary 
StoryTypeCodeArea
1.00 WOOD DECK WDK 148
1.00 GARAGE FINISH GRF 528
1.00 OPEN PORCH FIN OPF 192
1.00 UPPER STY FIN USF 963
 
Other Improvements 
UnitsDescriptionItemCodeYear% BadValue
12x12 DIMENSIONS CONCRETE PATIO 1999 65 387
16x20 DIMENSIONS UTILITY FRAME 2003 65 4534
12x12 DIMENSIONS CONCRETE PATIO 2010 57 475
 


Building Sketch
Photograph
Building Sketch Building Photo
(Click sketch for bigger image)