Cumberland County
Building Summary

Data last updated on: 1/30/2026     Ownership current as of: 1/20/2026     Tax Year: 2026
REID 0413024535000

PIN # 0413-02-4535

Location Address Property Description
5513 QUARTER POLE LN ARLINGTON PLANTATION LO:132 SE:08 PL:0099-0117
   
Property Owner Owner's Mailing Address
ALEA, FADI;MOSER, ABIGAIL
5513 QUARTER POLE LN
HOPE MILLS NC 28348
Parcel
Buildings
Misc Improvements
Land
Deeds
Documents
Notes
Sales
Sales Comparison
Photos
Building Location Address
5513 QUARTER POLE LN
Building Description
R1-SINGLE-FAMILY-RES
Card   of  1
Bldg Type R1-SINGLE-FAMILY-RES
Units 0
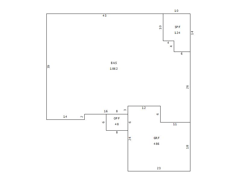
Living Area (SQFT) 1862
Number of Stories 1.00
Style 000002-STYLE
Foundation G-PIERS-W/CNTFWL
Frame CONSTANT
Exterior 12-BRICK/WOOD
Const Type
Heating M-07&S-01
Air Cond AC-Y
Plumbing Baths (Full):   2
Baths (Half):   0
Extra Fixtures:   1
Total Plumbing Fixtures:   7 
Bedrooms 3
Floor 11-CARPET-COMB
Roof Cover 03-COMP SHINGLE
Roof Type 02-GABLE
Main Body (SQFT) 1862
Year Built 1999
Additions 4
Effective Year 1999
Remodeled 0
Interior Adj.
Other Features
Building Total & Improvement Details

Grade 435 117%
Percentage Complete 100
Total Adjusted Replacement Cost New $284,719
Physical Depreciation (% Bad) A 18%
Depreciated Value $233,470
Economic Depreciation (% Bad) 0
Functional Depreciation (% Bad) 0
Total Depreciated Value $233,470
Market Area Factor 1.00
Building Value $233,470
Misc Improvements Value $8,673
Total Improvement Value $242,143

Assessed Land Value $33,000
   
Assessed Total Value $315,500



Addition Summary 
StoryTypeCodeArea
1.00 SCREEN PORCH F SPF 124
1.00 GARAGE FINISH GRF 486
1.00 OPEN PORCH FIN OPF 48
1.00 WOOD DECK WDK 677
 
Other Improvements 
UnitsDescriptionItemCodeYear% BadValue
16x14 DIMENSIONS UTILITY FRAME 2013 37 4534
25x14 DIMENSIONS BRICK PATIO 2021 20 4139
 


Building Sketch
Photograph
Building Sketch Building Photo
(Click sketch for bigger image)