Cumberland County
Building Summary

Data last updated on: 1/30/2026     Ownership current as of: 1/20/2026     Tax Year: 2026
REID 0413038847000

PIN # 0413-03-8847

Location Address Property Description
5105 PREAKNESS PL ARLINGTON PLANTATION LO:31 SE:04 PL:0074-0015
   
Property Owner Owner's Mailing Address
MCMILLAN, JAMES
5105 PREAKNESS PL
HOPE MILLS NC 28348
Parcel
Buildings
Misc Improvements
Land
Deeds
Documents
Notes
Sales
Sales Comparison
Photos
Building Location Address
5105 PREAKNESS PL
Building Description
R1-SINGLE-FAMILY-RES
Card   of  1
Bldg Type R1-SINGLE-FAMILY-RES
Units 0
Living Area (SQFT) 1653
Number of Stories 1.00
Style 000002-STYLE
Foundation S-SLAB
Frame CONSTANT
Exterior 11-BRICK-VENEER
Const Type
Heating M-07&S-02
Air Cond AC-Y
Plumbing Baths (Full):   2
Baths (Half):   0
Extra Fixtures:   1
Total Plumbing Fixtures:   7 
Bedrooms 3
Floor 11-CARPET-COMB
Roof Cover 03-COMP SHINGLE
Roof Type 02-GABLE
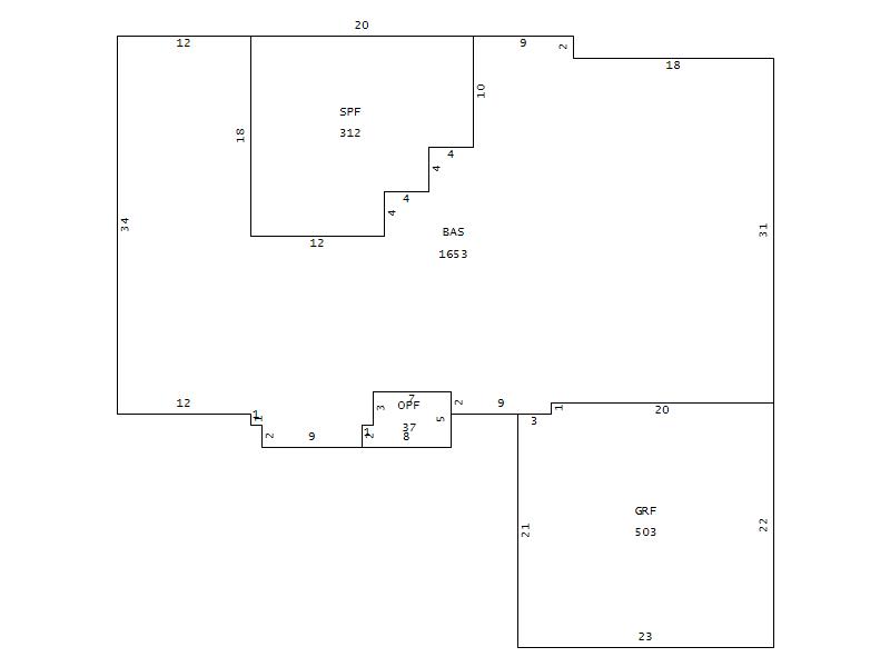
Main Body (SQFT) 1653
Year Built 1992
Additions 3
Effective Year 1992
Remodeled 0
Interior Adj.
Other Features
Building Total & Improvement Details

Grade 435 117%
Percentage Complete 100
Total Adjusted Replacement Cost New $259,092
Physical Depreciation (% Bad) A 21%
Depreciated Value $204,683
Economic Depreciation (% Bad) 0
Functional Depreciation (% Bad) 0
Total Depreciated Value $204,683
Market Area Factor 1.00
Building Value $204,683
Misc Improvements Value $2,603
Total Improvement Value $207,286

Assessed Land Value $33,000
   
Assessed Total Value $282,600



Addition Summary 
StoryTypeCodeArea
1.00 GARAGE FINISH GRF 503
1.00 OPEN PORCH FIN OPF 37
1.00 SCREEN PORCH F SPF 312
 
Other Improvements 
UnitsDescriptionItemCodeYear% BadValue
18X10 DIMENSIONS UTILITY FRAME 2006 55 2603
 


Building Sketch
Photograph
Building Sketch Building Photo
(Click sketch for bigger image)