Cumberland County
Building Summary

Data last updated on: 1/30/2026     Ownership current as of: 1/20/2026     Tax Year: 2026
REID 0413091199000

PIN # 0413-09-1199

Location Address Property Description
4216 ACHILLES DR FAIRWAY FOREST LO:174 PH:1-A2 SE:08 PL:0099-0125
   
Property Owner Owner's Mailing Address
PEREZ, JOSUE CRUZ;SANCHEZ, NEYSHA JIMENEZ
4216 ACHILLES DRIVE
HOPE MILLS NC 28348
Parcel
Buildings
Misc Improvements
Land
Deeds
Documents
Notes
Sales
Sales Comparison
Photos
Building Location Address
4216 ACHILLES DR
Building Description
R1-SINGLE-FAMILY-RES
Card   of  1
Bldg Type R1-SINGLE-FAMILY-RES
Units 0
Living Area (SQFT) 1570
Number of Stories 1.00
Style 000002-STYLE
Foundation S-SLAB
Frame CONSTANT
Exterior 04-VINYL-SIDING
Const Type
Heating M-07&S-01
Air Cond AC-Y
Plumbing Baths (Full):   2
Baths (Half):   0
Extra Fixtures:   2
Total Plumbing Fixtures:   8 
Bedrooms 4
Floor 11-CARPET-COMB
Roof Cover 03-COMP SHINGLE
Roof Type 02-GABLE
Main Body (SQFT) 1570
Year Built 2002
Additions 3
Effective Year 2002
Remodeled 0
Interior Adj.
Other Features
Building Total & Improvement Details

Grade 350 100%
Percentage Complete 100
Total Adjusted Replacement Cost New $199,967
Physical Depreciation (% Bad) A 20%
Depreciated Value $159,974
Economic Depreciation (% Bad) 0
Functional Depreciation (% Bad) 0
Total Depreciated Value $159,974
Market Area Factor 1.00
Building Value $159,974
Misc Improvements Value $3,419
Total Improvement Value $163,393

Assessed Land Value $35,000
   
Assessed Total Value $266,700



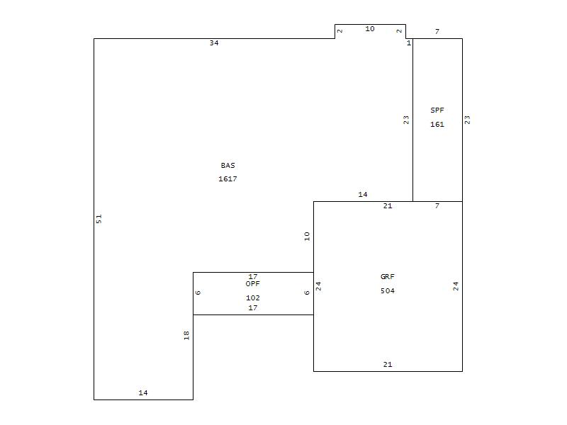
Addition Summary 
StoryTypeCodeArea
1.00 GARAGE FINISH GRF 504
1.00 OPEN PORCH FIN OPF 102
1.00 SCREEN PORCH F SPF 154
 
Other Improvements 
UnitsDescriptionItemCodeYear% BadValue
10x10 DIMENSIONS UTILITY FRAME 2021 17 2667
8X35 DIMENSIONS CONCRETE PATIO 2007 65 752
 


Building Sketch
Photograph
Building Sketch Building Photo
(Click sketch for bigger image)