Cumberland County
Building Summary

Data last updated on: 1/30/2026     Ownership current as of: 1/20/2026     Tax Year: 2026
REID 0413128885000

PIN # 0413-12-8885

Location Address Property Description
5415 KENTUCKY LN JOHN & JANE DEW LO:B SE:01 PL:0110-0098
   
Property Owner Owner's Mailing Address
YOURGAL, MICHAEL JR;YOURGAL, JENNIFER
5415 KENTUCKY LN
HOPE MILLS NC 28348
Parcel
Buildings
Misc Improvements
Land
Deeds
Documents
Notes
Sales
Sales Comparison
Photos
Building Location Address
5415 KENTUCKY LN
Building Description
R1-SINGLE-FAMILY-RES
Card   of  1
Bldg Type R1-SINGLE-FAMILY-RES
Units 0
Living Area (SQFT) 2133
Number of Stories 1.00
Style 000002-STYLE
Foundation G-PIERS-W/CNTFWL
Frame CONSTANT
Exterior 12-BRICK/WOOD
Const Type
Heating M-07&S-01
Air Cond AC-Y
Plumbing Baths (Full):   2
Baths (Half):   0
Extra Fixtures:   2
Total Plumbing Fixtures:   8 
Bedrooms 4
Roof Cover 03-COMP SHINGLE
Roof Type 02-GABLE
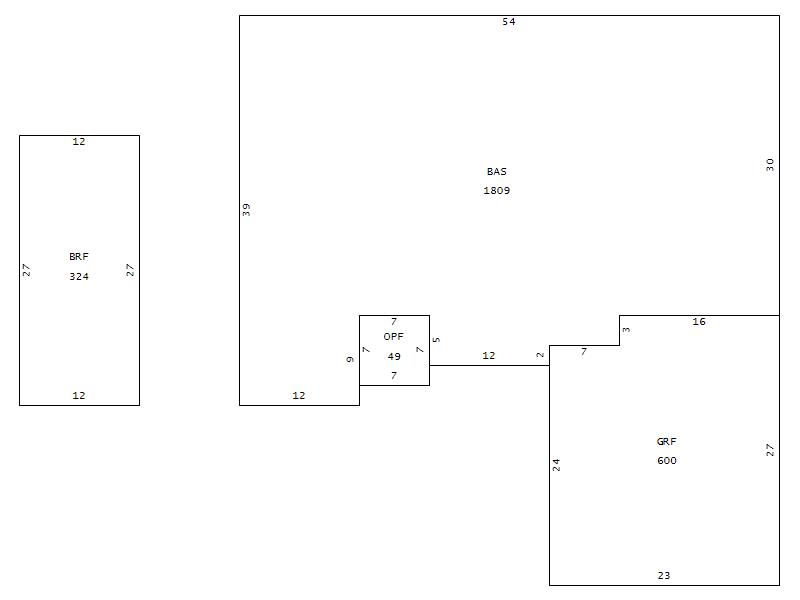
Main Body (SQFT) 1809
Year Built 2005
Additions 3
Effective Year 2005
Remodeled 0
Interior Adj.
Other Features
Building Total & Improvement Details

Grade 370 108%
Percentage Complete 100
Total Adjusted Replacement Cost New $259,596
Physical Depreciation (% Bad) A 19%
Depreciated Value $210,273
Economic Depreciation (% Bad) 0
Functional Depreciation (% Bad) 0
Total Depreciated Value $210,273
Market Area Factor 1.00
Building Value $210,273
Misc Improvements Value $568
Total Improvement Value $210,841

Assessed Land Value $33,000
   
Assessed Total Value $306,000



Addition Summary 
StoryTypeCodeArea
1.00 GARAGE FINISH GRF 600
1.00 OPEN PORCH FIN OPF 49
1.00 BONUS RM FINIS BRF 324
 
Other Improvements 
UnitsDescriptionItemCodeYear% BadValue
14x12 DIMENSIONS CONCRETE PATIO 2005 65 568
 


Building Sketch
Photograph
Building Sketch Building Photo
(Click sketch for bigger image)