Cumberland County
Building Summary

Data last updated on: 10/9/2025     Ownership current as of: 10/6/2025     Tax Year: 2025
REID 0413193640000

PIN # 0413-19-3640

Location Address Property Description
5323 AHOSKIE DR FAIRWAY FOREST LO:21 SE:08 PL:0100-0088 UN:03
   
Property Owner Owner's Mailing Address
FENNER, KYLE
5323 AHOSKIE DR
HOPE MILLS NC 28348
Parcel
Buildings
Misc Improvements
Land
Deeds
Documents
Notes
Sales
Sales Comparison
Photos
Building Location Address
5323 AHOSKIE DR
Building Description
R1-SINGLE-FAMILY-RES
Card   of  1
Bldg Type R1-SINGLE-FAMILY-RES
Units 0
Living Area (SQFT) 1600
Number of Stories 1.00
Style 000002-STYLE
Foundation G-PIERS-W/CNTFWL
Frame CONSTANT
Exterior 12-BRICK/WOOD
Const Type
Heating M-07&S-01
Air Cond AC-Y
Plumbing Baths (Full):   2
Baths (Half):   0
Extra Fixtures:   1
Total Plumbing Fixtures:   7 
Bedrooms 3
Floor 11-CARPET-COMB
Roof Cover 03-COMP SHINGLE
Roof Type 02-GABLE
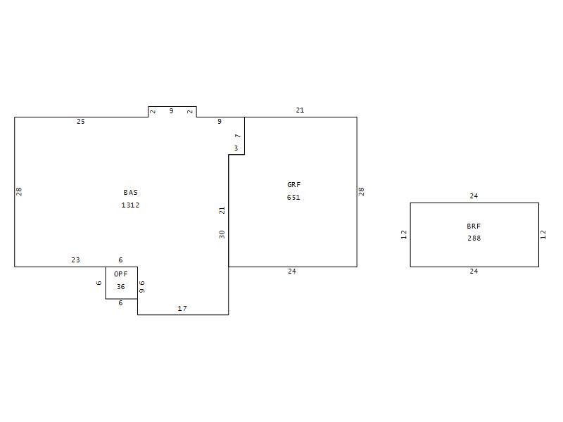
Main Body (SQFT) 1312
Year Built 2000
Additions 3
Effective Year 2000
Remodeled 0
Interior Adj.
Other Features
Building Total & Improvement Details

Grade 350 100%
Percentage Complete 100
Total Adjusted Replacement Cost New $194,802
Physical Depreciation (% Bad) A 21%
Depreciated Value $153,894
Economic Depreciation (% Bad) 0
Functional Depreciation (% Bad) 0
Total Depreciated Value $153,894
Market Area Factor 1.00
Building Value $153,894
Misc Improvements Value $659
Total Improvement Value $154,553

Assessed Land Value $35,000
   
Assessed Total Value $258,200



Addition Summary 
StoryTypeCodeArea
1.00 GARAGE FINISH GRF 651
1.00 OPEN PORCH FIN OPF 36
1.00 BONUS RM FINIS BRF 288
 
Other Improvements 
UnitsDescriptionItemCodeYear% BadValue
12x12 DIMENSIONS CONCRETE PATIO 2000 65 387
10x12 DIMENSIONS UTILITY METAL 2002 65 272
 


Building Sketch
Photograph
Building Sketch Building Photo
(Click sketch for bigger image)