Cumberland County
Building Summary

Data last updated on: 12/15/2025     Ownership current as of: 12/9/2025     Tax Year: 2025
REID 0413195745000

PIN # 0413-19-5745

Location Address Property Description
5316 AHOSKIE DR FAIRWAY FOREST LO:72 PH:03 SE:08 PL:0100-0088
   
Property Owner Owner's Mailing Address
PETERSON, CAMERON;FRIAS-VASQUEZ, SCARLLET
5316 AHOSKIE DR
HOPE MILLS NC 28348
Parcel
Buildings
Misc Improvements
Land
Deeds
Documents
Notes
Sales
Sales Comparison
Photos
Building Location Address
5316 AHOSKIE DR
Building Description
R1-SINGLE-FAMILY-RES
Card   of  1
Bldg Type R1-SINGLE-FAMILY-RES
Units 0
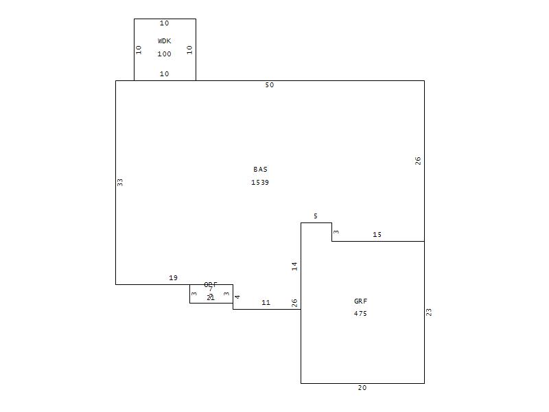
Living Area (SQFT) 1539
Number of Stories 1.00
Style 000002-STYLE
Foundation G-PIERS-W/CNTFWL
Frame CONSTANT
Exterior 12-BRICK/WOOD
Const Type
Heating M-07&S-01
Air Cond AC-Y
Plumbing Baths (Full):   2
Baths (Half):   0
Extra Fixtures:   1
Total Plumbing Fixtures:   7 
Bedrooms 3
Floor 11-CARPET-COMB
Roof Cover 03-COMP SHINGLE
Roof Type 02-GABLE
Main Body (SQFT) 1539
Year Built 2000
Additions 3
Effective Year 2000
Remodeled 0
Interior Adj.
Other Features
Building Total & Improvement Details

Grade 350 100%
Percentage Complete 100
Total Adjusted Replacement Cost New $192,350
Physical Depreciation (% Bad) A 21%
Depreciated Value $151,956
Economic Depreciation (% Bad) 0
Functional Depreciation (% Bad) 0
Total Depreciated Value $151,956
Market Area Factor 1.00
Building Value $151,956
Misc Improvements Value
Total Improvement Value $151,956

Assessed Land Value $35,000
   
Assessed Total Value $247,700



Addition Summary 
StoryTypeCodeArea
1.00 WOOD DECK WDK 100
1.00 OPEN PORCH FIN OPF 21
1.00 GARAGE FINISH GRF 475
 
Other Improvements 
 


Building Sketch
Photograph
Building Sketch Building Photo
(Click sketch for bigger image)