Cumberland County
Building Summary

Data last updated on: 1/7/2026     Ownership current as of: 1/7/2026     Tax Year: 2026
REID 0413944253000

PIN # 0413-94-4253

Location Address Property Description
5420 SHIPMAN RD CECILIA S REGISTER DIV & RECOMB LO:3A SE:01 PL:0099-0043
   
Property Owner Owner's Mailing Address
NC COASTLINE PROPERTIES LLC
3207 ASHBOURNE CT
WILMINGTON NC 28405
Parcel
Buildings
Misc Improvements
Land
Deeds
Documents
Notes
Sales
Sales Comparison
Photos
Building Location Address
5420 SHIPMAN RD
Building Description
R1-SINGLE-FAMILY-RES
Card   of  1
Bldg Type R1-SINGLE-FAMILY-RES
Units 0
Living Area (SQFT) 1798
Number of Stories 1.00
Style 000002-STYLE
Foundation G-PIERS-W/CNTFWL
Frame CONSTANT
Exterior 11-BRICK-VENEER
Const Type
Heating M-07&S-01
Air Cond AC-Y
Plumbing Baths (Full):   2
Baths (Half):   0
Extra Fixtures:   0
Total Plumbing Fixtures:   6 
Bedrooms 3
Roof Cover 03-COMP SHINGLE
Roof Type 02-GABLE
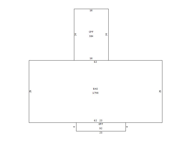
Main Body (SQFT) 1798
Year Built 1968
Additions 2
Effective Year 1968
Remodeled 2013
Interior Adj.
Other Features
Building Total & Improvement Details

Grade 350 100%
Percentage Complete 100
Total Adjusted Replacement Cost New $210,091
Physical Depreciation (% Bad) A 35%
Depreciated Value $136,559
Economic Depreciation (% Bad) 0
Functional Depreciation (% Bad) 0
Total Depreciated Value $136,559
Market Area Factor 1.00
Building Value $136,559
Misc Improvements Value
Total Improvement Value $136,559

Assessed Land Value $30,000
   
Assessed Total Value $287,100



Addition Summary 
StoryTypeCodeArea
1.00 CARPORT FINISH CPF 384
1.00 OPEN PORCH FIN OPF 92
 
Other Improvements 
 


Building Sketch
Photograph
Building Sketch Building Photo
(Click sketch for bigger image)