Cumberland County
Building Summary

Data last updated on: 12/15/2025     Ownership current as of: 12/9/2025     Tax Year: 2025
REID 0414006997000

PIN # 0414-00-6997

Location Address Property Description
4349 BISHAMON ST FAIRWAY FOREST EAST LO:45 SE:02 PL:0090-0194
   
Property Owner Owner's Mailing Address
LORA, MICHAEL ALVIN III
4349 BISHAMON ST
HOPE MILLS NC 28348
Parcel
Buildings
Misc Improvements
Land
Deeds
Documents
Notes
Sales
Sales Comparison
Photos
Building Location Address
4349 BISHAMON ST
Building Description
R1-SINGLE-FAMILY-RES
Card   of  1
Bldg Type R1-SINGLE-FAMILY-RES
Units 0
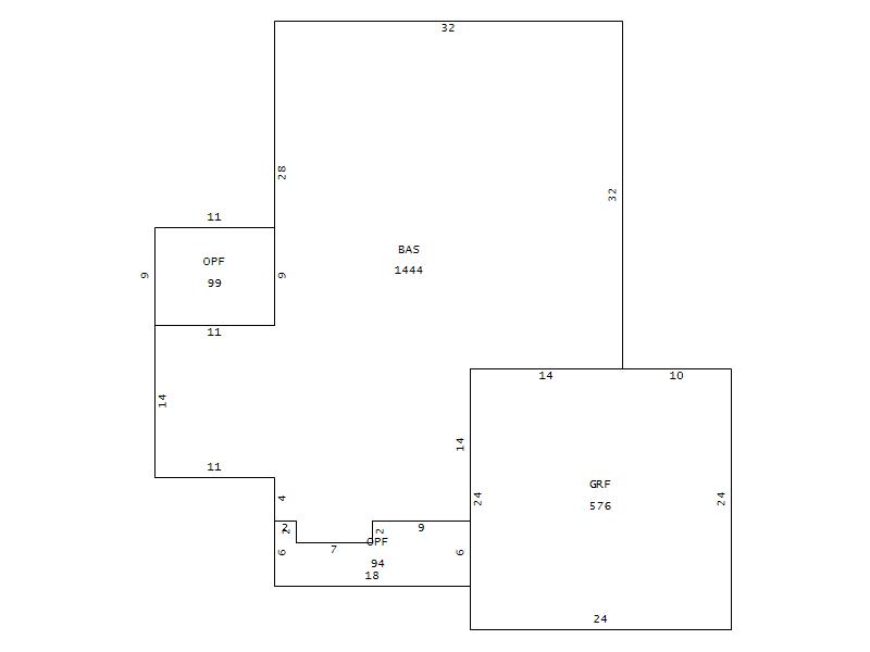
Living Area (SQFT) 1444
Number of Stories 1.00
Style 000002-STYLE
Foundation S-SLAB
Frame CONSTANT
Exterior 12-BRICK/WOOD
Const Type
Heating M-07&S-01
Air Cond AC-Y
Plumbing Baths (Full):   2
Baths (Half):   0
Extra Fixtures:   0
Total Plumbing Fixtures:   6 
Bedrooms 3
Floor 11-CARPET-COMB
Roof Cover 03-COMP SHINGLE
Roof Type 02-GABLE
Main Body (SQFT) 1444
Year Built 1996
Additions 3
Effective Year 1996
Remodeled 0
Interior Adj.
Other Features
Building Total & Improvement Details

Grade 350 100%
Percentage Complete 100
Total Adjusted Replacement Cost New $186,034
Physical Depreciation (% Bad) A 23%
Depreciated Value $143,246
Economic Depreciation (% Bad) 0
Functional Depreciation (% Bad) 0
Total Depreciated Value $143,246
Market Area Factor 1.00
Building Value $143,246
Misc Improvements Value
Total Improvement Value $143,246

Assessed Land Value $35,000
   
Assessed Total Value $243,800



Addition Summary 
StoryTypeCodeArea
1.00 GARAGE FINISH GRF 576
1.00 OPEN PORCH FIN OPF 94
1.00 OPEN PORCH FIN OPF 99
 
Other Improvements 
 


Building Sketch
Photograph
Building Sketch Building Photo
(Click sketch for bigger image)