Cumberland County
Building Summary

Data last updated on: 12/15/2025     Ownership current as of: 12/9/2025     Tax Year: 2025
REID 0414017051000

PIN # 0414-01-7051

Location Address Property Description
4353 BISHAMON ST FAIRWAY FOREST EAST REVISION LO:46 SE:02 PL:0091-0049
   
Property Owner Owner's Mailing Address
DELLAPIETRO-FASH, ALEXIS R
4353 BISHAMON STREET
HOPE MILLS NC 28348
Parcel
Buildings
Misc Improvements
Land
Deeds
Documents
Notes
Sales
Sales Comparison
Photos
Building Location Address
4353 BISHAMON ST
Building Description
R1-SINGLE-FAMILY-RES
Card   of  1
Bldg Type R1-SINGLE-FAMILY-RES
Units 0
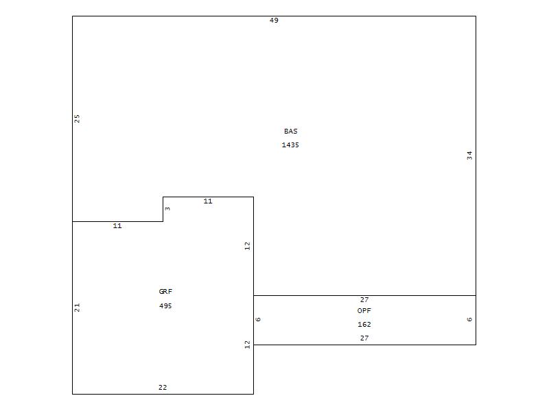
Living Area (SQFT) 1435
Number of Stories 1.00
Style 000002-STYLE
Foundation S-SLAB
Frame CONSTANT
Exterior 04-VINYL-SIDING
Const Type
Heating M-07&S-01
Air Cond AC-Y
Plumbing Baths (Full):   2
Baths (Half):   0
Extra Fixtures:   0
Total Plumbing Fixtures:   6 
Bedrooms 3
Floor 11-CARPET-COMB
Roof Cover 03-COMP SHINGLE
Roof Type 02-GABLE
Main Body (SQFT) 1435
Year Built 1996
Additions 2
Effective Year 1996
Remodeled 0
Interior Adj.
Other Features
Building Total & Improvement Details

Grade 350 100%
Percentage Complete 100
Total Adjusted Replacement Cost New $177,793
Physical Depreciation (% Bad) A 23%
Depreciated Value $136,901
Economic Depreciation (% Bad) 0
Functional Depreciation (% Bad) 0
Total Depreciated Value $136,901
Market Area Factor 1.00
Building Value $136,901
Misc Improvements Value $166
Total Improvement Value $137,067

Assessed Land Value $35,000
   
Assessed Total Value $241,200



Addition Summary 
StoryTypeCodeArea
1.00 OPEN PORCH FIN OPF 162
1.00 GARAGE FINISH GRF 495
 
Other Improvements 
UnitsDescriptionItemCodeYear% BadValue
12x12 DIMENSIONS CONCRETE PATIO 1996 85 166
 


Building Sketch
Photograph
Building Sketch Building Photo
(Click sketch for bigger image)