Cumberland County
Building Summary

Data last updated on: 1/26/2026     Ownership current as of: 1/20/2026     Tax Year: 2026
REID 0414101114000

PIN # 0414-10-1114

Location Address Property Description
5346 HEATHER ST FAIRWAY FOREST EAST LO:15 SE:01 PL:0089-0113
   
Property Owner Owner's Mailing Address
GRANADOS, EDUARDO;CALDERON, PAOLA QUEVEDO
5346 HEATHER STREET
HOPE MILLS NC 28348
Parcel
Buildings
Misc Improvements
Land
Deeds
Documents
Notes
Sales
Sales Comparison
Photos
Building Location Address
5346 HEATHER ST
Building Description
R1-SINGLE-FAMILY-RES
Card   of  1
Bldg Type R1-SINGLE-FAMILY-RES
Units 0
Living Area (SQFT) 1555
Number of Stories 1.00
Style 000002-STYLE
Foundation G-PIERS-W/CNTFWL
Frame CONSTANT
Exterior 11-BRICK-VENEER
Const Type
Heating M-07&S-01
Air Cond AC-Y
Plumbing Baths (Full):   2
Baths (Half):   0
Extra Fixtures:   0
Total Plumbing Fixtures:   6 
Bedrooms 3
Floor 11-CARPET-COMB
Roof Cover 03-COMP SHINGLE
Roof Type 02-GABLE
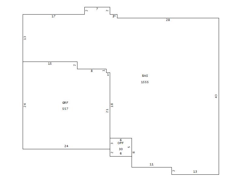
Main Body (SQFT) 1555
Year Built 1996
Additions 2
Effective Year 1996
Remodeled 0
Interior Adj.
Other Features
Building Total & Improvement Details

Grade 350 100%
Percentage Complete 100
Total Adjusted Replacement Cost New $199,578
Physical Depreciation (% Bad) A 23%
Depreciated Value $153,675
Economic Depreciation (% Bad) 0
Functional Depreciation (% Bad) 0
Total Depreciated Value $153,675
Market Area Factor 1.00
Building Value $153,675
Misc Improvements Value $387
Total Improvement Value $154,062

Assessed Land Value $35,000
   
Assessed Total Value $248,800



Addition Summary 
StoryTypeCodeArea
1.00 GARAGE FINISH GRF 557
1.00 OPEN PORCH FIN OPF 30
 
Other Improvements 
UnitsDescriptionItemCodeYear% BadValue
12x12 DIMENSIONS CONCRETE PATIO 1996 65 387
 


Building Sketch
Photograph
Building Sketch Building Photo
(Click sketch for bigger image)