Cumberland County
Building Summary

Data last updated on: 12/15/2025     Ownership current as of: 12/9/2025     Tax Year: 2025
REID 0414104272000

PIN # 0414-10-4272

Location Address Property Description
5352 OLD RAILROAD WAY FAIRWAY FOREST LO:168 PH:1-A1 SE:08 PL:0097-0120
   
Property Owner Owner's Mailing Address
TURNER, ANTHONY JOSEPH;TURNER, SONDRA MARIE
5352 OLD RAILROAD WAY
HOPE MILLS NC 28348
Parcel
Buildings
Misc Improvements
Land
Deeds
Documents
Notes
Sales
Sales Comparison
Photos
Building Location Address
5352 OLD RAILROAD WAY
Building Description
R1-SINGLE-FAMILY-RES
Card   of  1
Bldg Type R1-SINGLE-FAMILY-RES
Units 0
Living Area (SQFT) 1638
Number of Stories 2.00
Style 000002-STYLE
Foundation G-PIERS-W/CNTFWL
Frame CONSTANT
Exterior 03-MAS/ABST/OLD-WOOD
Const Type
Heating M-07&S-01
Air Cond AC-Y
Plumbing Baths (Full):   2
Baths (Half):   1
Extra Fixtures:   0
Total Plumbing Fixtures:   8 
Bedrooms 3
Floor 11-CARPET-COMB
Roof Cover 03-COMP SHINGLE
Roof Type 02-GABLE
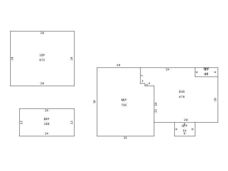
Main Body (SQFT) 678
Year Built 1999
Additions 5
Effective Year 1999
Remodeled 0
Interior Adj.
Other Features
Building Total & Improvement Details

Grade 350 100%
Percentage Complete 100
Total Adjusted Replacement Cost New $194,378
Physical Depreciation (% Bad) A 22%
Depreciated Value $151,615
Economic Depreciation (% Bad) 0
Functional Depreciation (% Bad) 0
Total Depreciated Value $151,615
Market Area Factor 1.00
Building Value $151,615
Misc Improvements Value $322
Total Improvement Value $151,937

Assessed Land Value $35,000
   
Assessed Total Value $264,600



Addition Summary 
StoryTypeCodeArea
1.00 OPEN PORCH FIN OPF 40
1.00 OPEN PORCH FIN OPF 54
1.00 GARAGE FINISH GRF 704
1.00 BONUS RM FINIS BRF 288
1.00 UPPER STY FIN USF 672
 
Other Improvements 
UnitsDescriptionItemCodeYear% BadValue
12x10 DIMENSIONS CONCRETE PATIO 1999 65 322
 


Building Sketch
Photograph
Building Sketch Building Photo
(Click sketch for bigger image)