Cumberland County
Building Summary

Data last updated on: 10/9/2025     Ownership current as of: 10/6/2025     Tax Year: 2025
REID 0414107651000

PIN # 0414-10-7651

Location Address Property Description
5213 BALLENTINE ST FAIRWAY FOREST LO:136 PH:1 SE:7 PL:0093-0012
   
Property Owner Owner's Mailing Address
BAREFOOT, MADISON
5213 BALLENTINE ST
HOPE MILLS NC 28348
Parcel
Buildings
Misc Improvements
Land
Deeds
Documents
Notes
Sales
Sales Comparison
Photos
Building Location Address
5213 BALLENTINE ST
Building Description
R1-SINGLE-FAMILY-RES
Card   of  1
Bldg Type R1-SINGLE-FAMILY-RES
Units 0
Living Area (SQFT) 1630
Number of Stories 1.00
Style 000002-STYLE
Foundation G-PIERS-W/CNTFWL
Frame CONSTANT
Exterior 12-BRICK/WOOD
Const Type
Heating M-07&S-01
Air Cond AC-Y
Plumbing Baths (Full):   2
Baths (Half):   0
Extra Fixtures:   0
Total Plumbing Fixtures:   6 
Bedrooms 3
Floor 11-CARPET-COMB
Roof Cover 03-COMP SHINGLE
Roof Type 02-GABLE
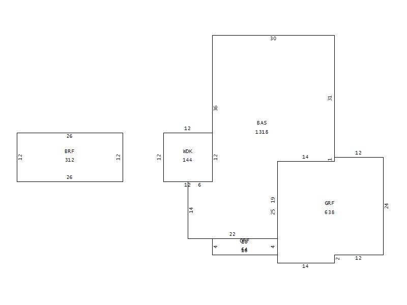
Main Body (SQFT) 1318
Year Built 1998
Additions 4
Effective Year 1998
Remodeled 0
Interior Adj.
Other Features
Building Total & Improvement Details

Grade 350 100%
Percentage Complete 100
Total Adjusted Replacement Cost New $199,434
Physical Depreciation (% Bad) A 22%
Depreciated Value $155,559
Economic Depreciation (% Bad) 0
Functional Depreciation (% Bad) 0
Total Depreciated Value $155,559
Market Area Factor 1.00
Building Value $155,559
Misc Improvements Value
Total Improvement Value $155,559

Assessed Land Value $35,000
   
Assessed Total Value $255,500



Addition Summary 
StoryTypeCodeArea
1.00 GARAGE FINISH GRF 638
1.00 OPEN PORCH FIN OPF 64
1.00 WOOD DECK WDK 144
1.00 BONUS RM FINIS BRF 312
 
Other Improvements 
 


Building Sketch
Photograph
Building Sketch Building Photo
(Click sketch for bigger image)