Cumberland County
Building Summary

Data last updated on: 10/9/2025     Ownership current as of: 10/6/2025     Tax Year: 2025
REID 0414118142000

PIN # 0414-11-8142

Location Address Property Description
4365 DOMINIQUE ST FAIRWAY FOREST LO:119 PH:1 SE:07 PL:0093-0012
   
Property Owner Owner's Mailing Address
ENOCHS, HAHN
4365 DOMINIQUE ST
HOPE MILLS NC 28348
Parcel
Buildings
Misc Improvements
Land
Deeds
Documents
Notes
Sales
Sales Comparison
Photos
Building Location Address
4365 DOMINIQUE ST
Building Description
R1-SINGLE-FAMILY-RES
Card   of  1
Bldg Type R1-SINGLE-FAMILY-RES
Units 0
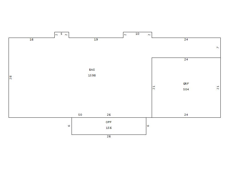
Living Area (SQFT) 1598
Number of Stories 1.00
Style 000002-STYLE
Foundation E-CNTFTG-SLBABGD
Frame CONSTANT
Exterior 12-BRICK/WOOD
Const Type
Heating M-07&S-01
Air Cond AC-Y
Plumbing Baths (Full):   2
Baths (Half):   1
Extra Fixtures:   2
Total Plumbing Fixtures:   10 
Bedrooms 3
Floor 11-CARPET-COMB
Roof Cover 03-COMP SHINGLE
Roof Type 02-GABLE
Main Body (SQFT) 1598
Year Built 1997
Additions 2
Effective Year 1997
Remodeled 0
Interior Adj.
Other Features
Building Total & Improvement Details

Grade 350 100%
Percentage Complete 100
Total Adjusted Replacement Cost New $206,289
Physical Depreciation (% Bad) A 23%
Depreciated Value $158,843
Economic Depreciation (% Bad) 0
Functional Depreciation (% Bad) 0
Total Depreciated Value $158,843
Market Area Factor 1.00
Building Value $158,843
Misc Improvements Value $1,235
Total Improvement Value $160,078

Assessed Land Value $35,000
   
Assessed Total Value $263,000



Addition Summary 
StoryTypeCodeArea
1.00 GARAGE FINISH GRF 504
1.00 OPEN PORCH FIN OPF 156
 
Other Improvements 
UnitsDescriptionItemCodeYear% BadValue
10x14 DIMENSIONS CONCRETE PATIO 1998 65 376
10x16 DIMENSIONS UTILITY METAL 2022 17 859
 


Building Sketch
Photograph
Building Sketch Building Photo
(Click sketch for bigger image)