Cumberland County
Building Summary

Data last updated on: 2/1/2026     Ownership current as of: 1/20/2026     Tax Year: 2026
REID 0415249247000

PIN # 0415-24-9247

Location Address Property Description
4036 RED OAK DR FIRESTONE HILLS LO:52 SE:04 PL:0107-0140
   
Property Owner Owner's Mailing Address
MELENDEZ, JEREMY BASTIDAS;CRUZ, YAMAIRA L VELAZQUEZ
4036 RED OAK DR
FAYETTEVILLE NC 28306
Parcel
Buildings
Misc Improvements
Land
Deeds
Documents
Notes
Sales
Sales Comparison
Photos
Building Location Address
4036 RED OAK DR
Building Description
R1-SINGLE-FAMILY-RES
Card   of  1
Bldg Type R1-SINGLE-FAMILY-RES
Units 0
Living Area (SQFT) 1385
Number of Stories 1.00
Style 000002-STYLE
Foundation S-SLAB
Frame CONSTANT
Exterior 04-VINYL-SIDING
Const Type
Heating M-07&S-01
Air Cond AC-Y
Plumbing Baths (Full):   2
Baths (Half):   0
Extra Fixtures:   2
Total Plumbing Fixtures:   8 
Bedrooms 3
Roof Cover 03-COMP SHINGLE
Roof Type 02-GABLE
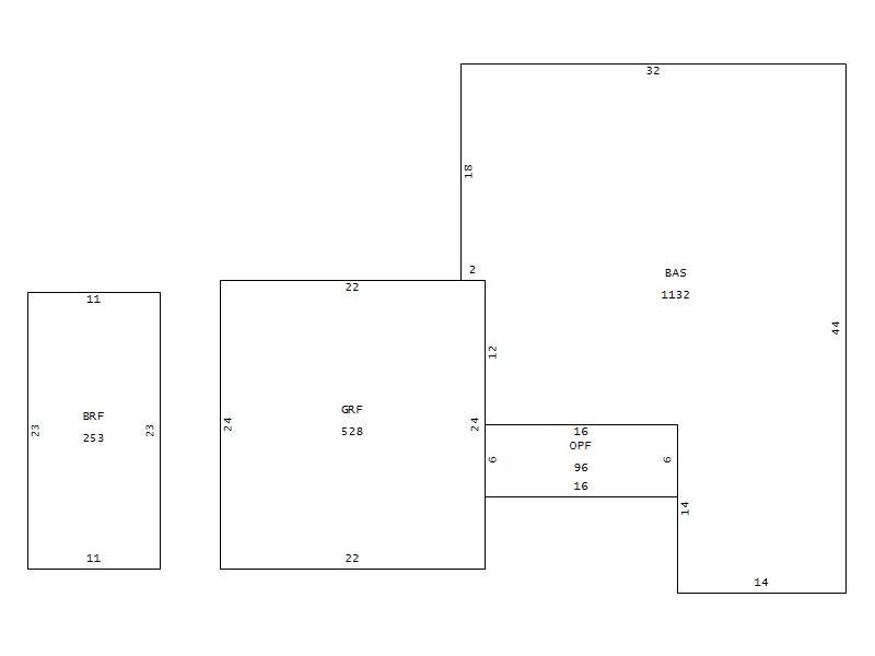
Main Body (SQFT) 1132
Year Built 2003
Additions 3
Effective Year 2003
Remodeled 0
Interior Adj.
Other Features
Building Total & Improvement Details

Grade 350 100%
Percentage Complete 100
Total Adjusted Replacement Cost New $168,789
Physical Depreciation (% Bad) A 20%
Depreciated Value $135,031
Economic Depreciation (% Bad) 0
Functional Depreciation (% Bad) 0
Total Depreciated Value $135,031
Market Area Factor 1.00
Building Value $135,031
Misc Improvements Value $387
Total Improvement Value $135,418

Assessed Land Value $32,000
   
Assessed Total Value $235,500



Addition Summary 
StoryTypeCodeArea
1.00 OPEN PORCH FIN OPF 96
1.00 GARAGE FINISH GRF 528
1.00 BONUS RM FINIS BRF 253
 
Other Improvements 
UnitsDescriptionItemCodeYear% BadValue
12x12 DIMENSIONS CONCRETE PATIO 2003 65 387
 


Building Sketch
Photograph
Building Sketch Building Photo
(Click sketch for bigger image)