Cumberland County
Building Summary

Data last updated on: 2/1/2026     Ownership current as of: 1/20/2026     Tax Year: 2026
REID 0415249564000

PIN # 0415-24-9564

Location Address Property Description
4020 RED OAK DR FIRESTONE HILLS LO:48 SE:01 PL:0102-0188
   
Property Owner Owner's Mailing Address
VICENS, ALEXANDER REYES
4020 RED OAK DRIVE
FAYETTEVILLE NC 28306
Parcel
Buildings
Misc Improvements
Land
Deeds
Documents
Notes
Sales
Sales Comparison
Photos
Building Location Address
4020 RED OAK DR
Building Description
R1-SINGLE-FAMILY-RES
Card   of  1
Bldg Type R1-SINGLE-FAMILY-RES
Units 0
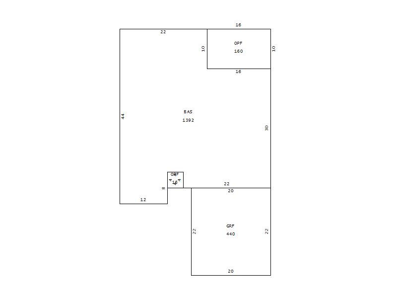
Living Area (SQFT) 1392
Number of Stories 1.00
Style 000002-STYLE
Foundation S-SLAB
Frame CONSTANT
Exterior 04-VINYL-SIDING
Const Type
Heating M-07&S-01
Air Cond AC-Y
Plumbing Baths (Full):   2
Baths (Half):   0
Extra Fixtures:   2
Total Plumbing Fixtures:   8 
Bedrooms 2
Roof Cover 03-COMP SHINGLE
Roof Type 02-GABLE
Main Body (SQFT) 1392
Year Built 2002
Additions 3
Effective Year 2002
Remodeled 0
Interior Adj.
Other Features
Building Total & Improvement Details

Grade 350 100%
Percentage Complete 100
Total Adjusted Replacement Cost New $176,344
Physical Depreciation (% Bad) A 20%
Depreciated Value $141,075
Economic Depreciation (% Bad) 0
Functional Depreciation (% Bad) 0
Total Depreciated Value $141,075
Market Area Factor 1.00
Building Value $141,075
Misc Improvements Value
Total Improvement Value $141,075

Assessed Land Value $32,000
   
Assessed Total Value $232,200



Addition Summary 
StoryTypeCodeArea
1.00 OPEN PORCH FIN OPF 160
1.00 GARAGE FINISH GRF 440
1.00 OPEN PORCH FIN OPF 16
 
Other Improvements 
 


Building Sketch
Photograph
Building Sketch Building Photo
(Click sketch for bigger image)