Cumberland County
Building Summary

Data last updated on: 2/1/2026     Ownership current as of: 1/20/2026     Tax Year: 2026
REID 0415256072000

PIN # 0415-25-6072

Location Address Property Description
2609 GRESSITT POINT LN FIRESTONE HILLS LO:166 SE:05 PL:0113-0163
   
Property Owner Owner's Mailing Address
MCDONALD, DEIDRA GAIL
2609 GRESSITT POINT LANE
FAYETTEVILLE NC 28306
Parcel
Buildings
Misc Improvements
Land
Deeds
Documents
Notes
Sales
Sales Comparison
Photos
Building Location Address
2609 GRESSITT POINT LN
Building Description
R1-SINGLE-FAMILY-RES
Card   of  1
Bldg Type R1-SINGLE-FAMILY-RES
Units 0
Living Area (SQFT) 1562
Number of Stories 1.00
Style 000002-STYLE
Foundation S-SLAB
Frame CONSTANT
Exterior 04-VINYL-SIDING
Const Type
Heating M-07&S-01
Air Cond AC-Y
Plumbing Baths (Full):   2
Baths (Half):   0
Extra Fixtures:   2
Total Plumbing Fixtures:   8 
Bedrooms 3
Roof Cover 03-COMP SHINGLE
Roof Type 02-GABLE
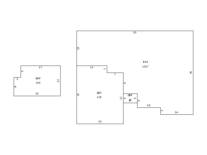
Main Body (SQFT) 1317
Year Built 2005
Additions 3
Effective Year 2005
Remodeled 0
Interior Adj.
Other Features
Building Total & Improvement Details

Grade 350 100%
Percentage Complete 100
Total Adjusted Replacement Cost New $180,493
Physical Depreciation (% Bad) A 19%
Depreciated Value $146,199
Economic Depreciation (% Bad) 0
Functional Depreciation (% Bad) 0
Total Depreciated Value $146,199
Market Area Factor 1.00
Building Value $146,199
Misc Improvements Value $387
Total Improvement Value $146,586

Assessed Land Value $32,000
   
Assessed Total Value $251,600



Addition Summary 
StoryTypeCodeArea
1.00 OPEN PORCH FIN OPF 24
1.00 GARAGE FINISH GRF 479
1.00 BONUS RM FINIS BRF 245
 
Other Improvements 
UnitsDescriptionItemCodeYear% BadValue
12x12 DIMENSIONS CONCRETE PATIO 2005 65 387
 


Building Sketch
Photograph
Building Sketch Building Photo
(Click sketch for bigger image)