Cumberland County
Building Summary

Data last updated on: 2/1/2026     Ownership current as of: 1/20/2026     Tax Year: 2026
REID 0415258008000

PIN # 0415-25-8008

Location Address Property Description
2500 FOREST LODGE DR FIRESTONE HILLS LO:7 SE:02 PL:0104-0072
   
Property Owner Owner's Mailing Address
MONROE, WESLEY
2500 FOREST LODGE DR
FAYETTEVILLE NC 28306
Parcel
Buildings
Misc Improvements
Land
Deeds
Documents
Notes
Sales
Sales Comparison
Photos
Building Location Address
2500 FOREST LODGE DR
Building Description
R1-SINGLE-FAMILY-RES
Card   of  1
Bldg Type R1-SINGLE-FAMILY-RES
Units 0
Living Area (SQFT) 1688
Number of Stories 1.00
Style 000002-STYLE
Foundation S-SLAB
Frame CONSTANT
Exterior 03-MAS/ABST/OLD-WOOD
Const Type
Heating M-07&S-01
Air Cond AC-Y
Plumbing Baths (Full):   2
Baths (Half):   0
Extra Fixtures:   0
Total Plumbing Fixtures:   6 
Bedrooms 3
Floor 11-CARPET-COMB
Roof Cover 03-COMP SHINGLE
Roof Type 02-GABLE
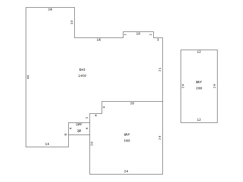
Main Body (SQFT) 1400
Year Built 2001
Additions 3
Effective Year 2001
Remodeled 0
Interior Adj.
Other Features
Building Total & Improvement Details

Grade 350 100%
Percentage Complete 100
Total Adjusted Replacement Cost New $194,177
Physical Depreciation (% Bad) A 21%
Depreciated Value $153,400
Economic Depreciation (% Bad) 0
Functional Depreciation (% Bad) 0
Total Depreciated Value $153,400
Market Area Factor 1.00
Building Value $153,400
Misc Improvements Value $322
Total Improvement Value $153,722

Assessed Land Value $32,000
   
Assessed Total Value $255,000



Addition Summary 
StoryTypeCodeArea
1.00 GARAGE FINISH GRF 560
1.00 OPEN PORCH FIN OPF 28
1.00 BONUS RM FINIS BRF 288
 
Other Improvements 
UnitsDescriptionItemCodeYear% BadValue
10x12 DIMENSIONS CONCRETE PATIO 2001 65 322
 


Building Sketch
Photograph
Building Sketch Building Photo
(Click sketch for bigger image)