Cumberland County
Building Summary

Data last updated on: 2/1/2026     Ownership current as of: 1/20/2026     Tax Year: 2026
REID 0415341322000

PIN # 0415-34-1322

Location Address Property Description
4031 RED OAK DR FIRESTONE HILLS LO:105 SE:04 PL:0107-0140
   
Property Owner Owner's Mailing Address
KEMP, LAMONT;MCNEILL-KEMP, MARQUITA
4031 RED OAK DRIVE
FAYETTEVILLE NC 28306
Parcel
Buildings
Misc Improvements
Land
Deeds
Documents
Notes
Sales
Sales Comparison
Photos
Building Location Address
4031 RED OAK DR
Building Description
R1-SINGLE-FAMILY-RES
Card   of  1
Bldg Type R1-SINGLE-FAMILY-RES
Units 0
Living Area (SQFT) 1592
Number of Stories 1.00
Style 000002-STYLE
Foundation S-SLAB
Frame CONSTANT
Exterior 04-VINYL-SIDING
Const Type
Heating M-07&S-01
Air Cond AC-Y
Plumbing Baths (Full):   2
Baths (Half):   0
Extra Fixtures:   1
Total Plumbing Fixtures:   7 
Bedrooms 3
Roof Cover 03-COMP SHINGLE
Roof Type 02-GABLE
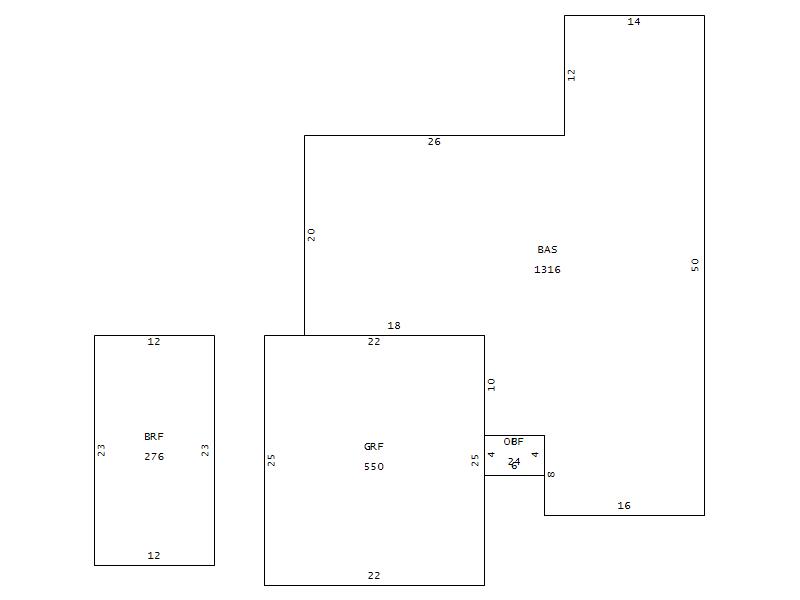
Main Body (SQFT) 1316
Year Built 2003
Additions 4
Effective Year 2003
Remodeled 0
Interior Adj.
Other Features
Building Total & Improvement Details

Grade 350 100%
Percentage Complete 100
Total Adjusted Replacement Cost New $187,963
Physical Depreciation (% Bad) A 20%
Depreciated Value $150,370
Economic Depreciation (% Bad) 0
Functional Depreciation (% Bad) 0
Total Depreciated Value $150,370
Market Area Factor 1.00
Building Value $150,370
Misc Improvements Value
Total Improvement Value $150,370

Assessed Land Value $32,000
   
Assessed Total Value $245,200



Addition Summary 
StoryTypeCodeArea
1.00 OPEN PORCH FIN OPF 24
1.00 GARAGE FINISH GRF 550
1.00 BONUS RM FINIS BRF 276
1.00 WOOD DECK WDK 168
 
Other Improvements 
 


Building Sketch
Photograph
Building Sketch Building Photo
(Click sketch for bigger image)