Cumberland County
Building Summary

Data last updated on: 1/28/2026     Ownership current as of: 1/20/2026     Tax Year: 2026
REID 0415658927000

PIN # 0415-65-8927

Location Address Property Description
1454 MINGARY AVE ACORN RIDGE LO:313 SE:4-PT1 PL:0115-0083
   
Property Owner Owner's Mailing Address
HAYDEN, SUSAN L
1454 MINGARY AVE
FAYETTEVILLE NC 28306
Parcel
Buildings
Misc Improvements
Land
Deeds
Documents
Notes
Sales
Sales Comparison
Photos
Building Location Address
1454 MINGARY AVE
Building Description
R1-SINGLE-FAMILY-RES
Card   of  1
Bldg Type R1-SINGLE-FAMILY-RES
Units 0
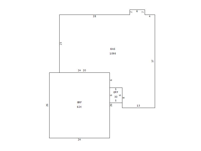
Living Area (SQFT) 1098
Number of Stories 1.00
Style 000002-STYLE
Foundation G-PIERS-W/CNTFWL
Frame CONSTANT
Exterior 22-CONCRETE-SIDING
Const Type
Heating M-07&S-01
Air Cond AC-Y
Plumbing Baths (Full):   2
Baths (Half):   0
Extra Fixtures:   1
Total Plumbing Fixtures:   7 
Bedrooms 3
Roof Cover 03-COMP SHINGLE
Roof Type 02-GABLE
Main Body (SQFT) 1098
Year Built 2006
Additions 2
Effective Year 2006
Remodeled 0
Interior Adj.
Other Features
Building Total & Improvement Details

Grade 350 100%
Percentage Complete 100
Total Adjusted Replacement Cost New $159,333
Physical Depreciation (% Bad) A 18%
Depreciated Value $130,653
Economic Depreciation (% Bad) 0
Functional Depreciation (% Bad) 0
Total Depreciated Value $130,653
Market Area Factor 1.00
Building Value $130,653
Misc Improvements Value $384
Total Improvement Value $131,037

Assessed Land Value $43,000
   
Assessed Total Value $238,500



Addition Summary 
StoryTypeCodeArea
1.00 OPEN PORCH FIN OPF 30
1.00 GARAGE FINISH GRF 624
 
Other Improvements 
UnitsDescriptionItemCodeYear% BadValue
11x13 DIMENSIONS CONCRETE PATIO 2006 65 384
 


Building Sketch
Photograph
Building Sketch Building Photo
(Click sketch for bigger image)