Cumberland County
Building Summary

Data last updated on: 1/28/2026     Ownership current as of: 1/20/2026     Tax Year: 2026
REID 0415663237000

PIN # 0415-66-3237

Location Address Property Description
1474 AVONCROFT DR ACORN RIDGE LO:387 SE:5-PT2 PL:0118-0004
   
Property Owner Owner's Mailing Address
MENSAH, ISAAC OSEI;ASARE, CHRISTABEL ASIEDUA
1474 AVONCROFT DR
FAYETTEVILLE NC 28306
Parcel
Buildings
Misc Improvements
Land
Deeds
Documents
Notes
Sales
Sales Comparison
Photos
Building Location Address
1474 AVONCROFT DR
Building Description
R1-SINGLE-FAMILY-RES
Card   of  1
Bldg Type R1-SINGLE-FAMILY-RES
Units 0
Living Area (SQFT) 1556
Number of Stories 1.00
Style 000002-STYLE
Foundation G-PIERS-W/CNTFWL
Frame CONSTANT
Exterior 22-CONCRETE-SIDING
Const Type
Heating M-07&S-01
Air Cond AC-Y
Plumbing Baths (Full):   2
Baths (Half):   0
Extra Fixtures:   2
Total Plumbing Fixtures:   8 
Bedrooms 3
Roof Cover 03-COMP SHINGLE
Roof Type 02-GABLE
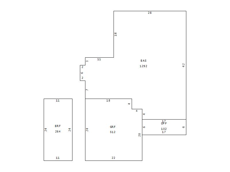
Main Body (SQFT) 1292
Year Built 2007
Additions 3
Effective Year 2007
Remodeled 0
Interior Adj.
Other Features
Building Total & Improvement Details

Grade 350 100%
Percentage Complete 100
Total Adjusted Replacement Cost New $195,228
Physical Depreciation (% Bad) A 18%
Depreciated Value $160,087
Economic Depreciation (% Bad) 0
Functional Depreciation (% Bad) 0
Total Depreciated Value $160,087
Market Area Factor 1.00
Building Value $160,087
Misc Improvements Value $2,822
Total Improvement Value $162,909

Assessed Land Value $43,000
   
Assessed Total Value $254,300



Addition Summary 
StoryTypeCodeArea
1.00 OPEN PORCH FIN OPF 102
1.00 GARAGE FINISH GRF 512
1.00 BONUS RM FINIS BRF 264
 
Other Improvements 
UnitsDescriptionItemCodeYear% BadValue
10x11 DIMENSIONS STOOP 2007 65 599
10x11 DIMENSIONS CONCRETE PATIO 2007 65 295
12x10 DIMENSIONS UTILITY FRAME 2008 50 1928
 


Building Sketch
Photograph
Building Sketch Building Photo
(Click sketch for bigger image)