Cumberland County
Building Summary

Data last updated on: 1/28/2026     Ownership current as of: 1/20/2026     Tax Year: 2026
REID 0415752225000

PIN # 0415-75-2225

Location Address Property Description
1415 OLDSTEAD DR ACORN RIDGE LO:200 SE:02 PL:0112-0011
   
Property Owner Owner's Mailing Address
VANDERFORD, GAVIN;TIETZ, JESSICA JAYMES
1415 OLDSTEAD DR
FAYETTEVILLE NC 28306
Parcel
Buildings
Misc Improvements
Land
Deeds
Documents
Notes
Sales
Sales Comparison
Photos
Building Location Address
1415 OLDSTEAD DR
Building Description
R1-SINGLE-FAMILY-RES
Card   of  1
Bldg Type R1-SINGLE-FAMILY-RES
Units 0
Living Area (SQFT) 1102
Number of Stories 1.00
Style 000002-STYLE
Foundation S-SLAB
Frame CONSTANT
Exterior 04-VINYL-SIDING
Const Type
Heating M-07&S-01
Air Cond AC-Y
Plumbing Baths (Full):   2
Baths (Half):   0
Extra Fixtures:   1
Total Plumbing Fixtures:   7 
Bedrooms 3
Roof Cover 03-COMP SHINGLE
Roof Type 02-GABLE
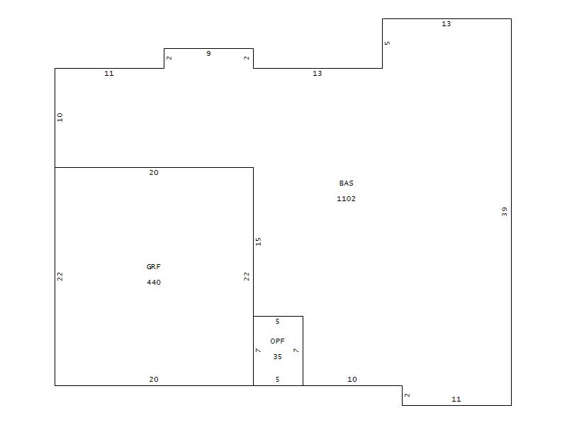
Main Body (SQFT) 1102
Year Built 2004
Additions 2
Effective Year 2004
Remodeled 0
Interior Adj.
Other Features
Building Total & Improvement Details

Grade 350 100%
Percentage Complete 100
Total Adjusted Replacement Cost New $143,002
Physical Depreciation (% Bad) A 19%
Depreciated Value $115,832
Economic Depreciation (% Bad) 0
Functional Depreciation (% Bad) 0
Total Depreciated Value $115,832
Market Area Factor 1.00
Building Value $115,832
Misc Improvements Value $419
Total Improvement Value $116,251

Assessed Land Value $43,000
   
Assessed Total Value $229,200



Addition Summary 
StoryTypeCodeArea
1.00 OPEN PORCH FIN OPF 35
1.00 GARAGE FINISH GRF 440
 
Other Improvements 
UnitsDescriptionItemCodeYear% BadValue
12x13 DIMENSIONS CONCRETE PATIO 2005 65 419
 


Building Sketch
Photograph
Building Sketch Building Photo
(Click sketch for bigger image)