Cumberland County
Building Summary

Data last updated on: 1/28/2026     Ownership current as of: 1/20/2026     Tax Year: 2026
REID 0415779415000

PIN # 0415-77-9415

Location Address Property Description
2104 FEATHERCOMBE CT ACORN RIDGE REV LO:51 SE:08 PL:0124-0143
   
Property Owner Owner's Mailing Address
HUERTAS, JONATHAN;HUERTAS, LAURA
2104 FEATHERCOMBE COURT
FAYETTEVILLE NC 28306
Parcel
Buildings
Misc Improvements
Land
Deeds
Documents
Notes
Sales
Sales Comparison
Photos
Building Location Address
2104 FEATHERCOMBE CT
Building Description
R1-SINGLE-FAMILY-RES
Card   of  1
Bldg Type R1-SINGLE-FAMILY-RES
Units 0
Living Area (SQFT) 1594
Number of Stories 2.00
Style 000002-STYLE
Foundation S-SLAB
Frame CONSTANT
Exterior 04-VINYL-SIDING
Const Type
Heating M-07&S-01
Air Cond AC-Y
Plumbing Baths (Full):   2
Baths (Half):   1
Extra Fixtures:   2
Total Plumbing Fixtures:   10 
Bedrooms 3
Roof Cover 03-COMP SHINGLE
Roof Type 02-GABLE
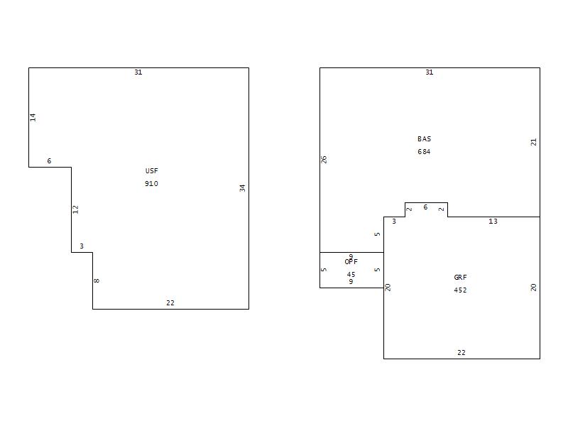
Main Body (SQFT) 684
Year Built 2013
Additions 3
Effective Year 2013
Remodeled 0
Interior Adj.
Other Features
Building Total & Improvement Details

Grade 350 100%
Percentage Complete 100
Total Adjusted Replacement Cost New $184,475
Physical Depreciation (% Bad) A 14%
Depreciated Value $158,648
Economic Depreciation (% Bad) 0
Functional Depreciation (% Bad) 0
Total Depreciated Value $158,648
Market Area Factor 1.00
Building Value $158,648
Misc Improvements Value $585
Total Improvement Value $159,233

Assessed Land Value $43,000
   
Assessed Total Value $267,200



Addition Summary 
StoryTypeCodeArea
1.00 GARAGE FINISH GRF 452
1.00 OPEN PORCH FIN OPF 45
1.00 UPPER STY FIN USF 910
 
Other Improvements 
UnitsDescriptionItemCodeYear% BadValue
12x12 DIMENSIONS CONCRETE PATIO 2013 47 585
 


Building Sketch
Photograph
Building Sketch Building Photo
(Click sketch for bigger image)