Cumberland County
Building Summary

Data last updated on: 1/29/2026     Ownership current as of: 1/20/2026     Tax Year: 2026
REID 0415863882000

PIN # 0415-86-3882

Location Address Property Description
2219 PUFFIN PL ACORN RIDGE REV LO:9 SE:08 PL:0124-0143
   
Property Owner Owner's Mailing Address
MAGANA, KEYSHA;MAGANA, CALVIN
2219 PUFFIN PL
FAYETTEVILLE NC 28306

Value subject to change, property assessment under review

Parcel
Buildings
Misc Improvements
Land
Deeds
Documents
Notes
Sales
Photos
Building Location Address
2219 PUFFIN PL
Building Description
R1-SINGLE-FAMILY-RES
Card   of  1
Bldg Type R1-SINGLE-FAMILY-RES
Units 0
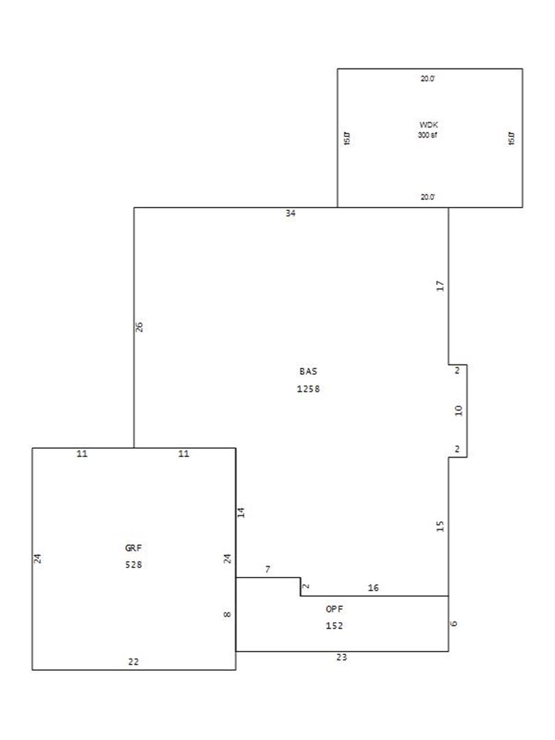
Living Area (SQFT) 1258
Number of Stories 1.00
Style 000002-STYLE
Foundation S-SLAB
Frame CONSTANT
Exterior 04-VINYL-SIDING
Const Type
Heating M-07&S-01
Air Cond AC-Y
Plumbing Baths (Full):   2
Baths (Half):   0
Extra Fixtures:   1
Total Plumbing Fixtures:   7 
Bedrooms 3
Roof Cover 03-COMP SHINGLE
Roof Type 02-GABLE
Main Body (SQFT) 1258
Year Built 2011
Additions 3
Effective Year 2011
Remodeled 0
Interior Adj.
Other Features
Building Total & Improvement Details

Grade 350 100%
Percentage Complete 100
Total Adjusted Replacement Cost New
Physical Depreciation (% Bad) A 16%
Depreciated Value
Economic Depreciation (% Bad) 0
Functional Depreciation (% Bad) 0
Total Depreciated Value
Market Area Factor 1.00
Building Value
Misc Improvements Value
Total Improvement Value

Assessed Land Value
   
Assessed Total Value



Addition Summary 
StoryTypeCodeArea
1.00 GARAGE FINISH GRF 528
1.00 OPEN PORCH FIN OPF 152
1.00 WOOD DECK WDK 336
 
Other Improvements 
UnitsDescriptionItemCodeYear% BadValue
14x8 DIMENSIONS CONCRETE PATIO 2011 53
10x18 DIMENSIONS UTILITY FRAME 2023 12
12X8 DIMENSIONS UTILITY FRAME 2021 17
10X10 DIMENSIONS CANOPY OVER WOODDECK 2022 17
 


Building Sketch
Photograph
Building Sketch Building Photo
(Click sketch for bigger image)